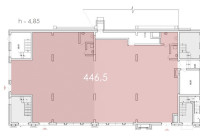
аренда 446,5 м2

ПСН
Дата обновления - 17.05.2024
Итоговая цена 1 026 950 ₽ / мес Итоговая цена
Стоимость за 1 м² 2 300 ₽ / мес
Стоимость за 1 м²
ПСН
Дата обновления - 17.05.2024

аренда 446,5 м2

ХАРАКТЕРИСТИКИ ПОМЕЩЕНИЯ
Тип сделки
Аренда
Тип помещения
ПСН
Площадь помещения
447 м²
Этаж
1
Высота потолков
4.85 м
Отделка
Чистовая стандарт
ХАРАКТЕРИСТИКИ ЗДАНИЯ
Этажность
2
Парковка
Открытая
КОНСУЛЬТАЦИЯ НАШЕГО ЭКСПЕРТА
Даниил Сигов
Эксперт проекта
Вы можете позвонить или написать мне в whatsapp:
или нажмите на кнопку, чтобы записаться на просмотр, и в ближайшее время я свяжусь с вами
ОПИСАНИЕ ОБЪЕКТА
⭐Предлагаем в аренду ПСН

✅Основные характеристики:
• Площадь: 446,5м2;
• Мощность электросети: 100 кВт;
• Высота потолков:4.85м;
• Этаж: 1;


⭐Стоимость, условия сделки:
• Арендная ставка -1 026 950 руб./мес.(2300 за м2);
• Обеспечительный платеж - 100% (1 026 950руб.);
• Срок договора - длительный (от 11 мес.);


✅Описание:
• Высокий пешеходный и автомобильный трафик;
• 4 отдельных входа;
• Вывеска, места под рекламу;
• Помещение в хорошем состоянии;
• Все коммуникации: телефонные линии, водоснабжение, канализация, теплоснабжение;
• Юр. статус: собственность.

✅ Подойдет под любой вид деятельности;




☎ Звоните, организуем просмотр в удобное Вам время.

⭐ Мы – АГЕНТСТВО НЕДВИЖИМОСТИ СЕВЕРО-ЗАПАДА – лидирующий эксперт рынка недвижимости Санкт-Петербурга и Ленинградской области.
Наши агенты закрывают более 300 сделок в год.
Мы строим долгосрочные деловые отношения на основе принципов честности и качественного сервиса с нашими клиентами.
⭐ Работая с нами, вы получите:
✅ Высокое качество сопровождения сделки от начала и до конца;
✅ Широкий спектр сопутствующих услуг;
✅ Оптимизацию ваших расходов при заключении сделки;
✅ Экономию Ваших нервов и времени при переговорах;
✅ Доступ к уникальной базе объектов, многие из которых отсутствуют в открытой рекламе;
✅ Помогаем оформлять ипотеку!

⭐Заходите в наш профиль, чтобы ознакомиться с нашими актуальными предложениями!
Если не нашли в нашем профиле то, что Вам подходит – позвоните ☎, и мы обязательно подберем нужный объект по самым выгодным условиям на рынке коммерческой недвижимости!

⭐ Добавьте объявление в Избранное, чтобы не потерять!

С Уважением, Сигов Даниил.
Недвижимость Северо-Запада.
показать все описание
Заинтересовал объект?
Оставьте свой номер - наш эксперт свяжется с Вами, ответит на все вопросы и запишет на просмотр
РАСПОЛОЖЕНИЕ ОБЪЕКТА НА КАРТЕ
Заинтересовал объект?
Оставьте свой номер - наш эксперт свяжется с Вами, ответит на все вопросы и запишет на просмотр
РАСПОЛОЖЕНИЕ ОБЪЕКТА НА КАРТЕ
Другие объекты компании
Продажа
27
19.11.2023
location_white Санкт-Петербург г, Пулковское ш, 53 А
Площадь
2007.00 м²
Цена за м²
20 428 ₽
Этажей в здании
1
Этаж
1
Продажа
21
27.01.2023
location_white Санкт-Петербург г, Дальневосточный пр-кт, 12к2стр1
Площадь
70.30 м²
Цена за м²
450 000 ₽
Этажей в здании
13
Этаж
1
Аренда
281
05.03.2025
location_white Парголово п, Заречная ул, 52
Площадь
123.00 м²
Цена за м²
3 300 ₽
Этажей в здании
16
Этаж
1
Аренда
22
23.05.2024
location_white Санкт-Петербург г, Бухарестская ул, 18 Д
Площадь
4700.00 м²
Цена за м²
638 ₽
Этажей в здании
1
Этаж
1