Аренда этажа, 650 м2

Офис
Дата обновления - 20.02.2026
Итоговая цена 845 000 ₽ / мес Итоговая цена
Стоимость за 1 м² 1 300 ₽ / мес
Стоимость за 1 м²
metro Петроградская
metro мин
Площадь помещения
650 м²
Офис
Дата обновления - 20.02.2026

Аренда этажа, 650 м2

ХАРАКТЕРИСТИКИ ПОМЕЩЕНИЯ
Тип сделки
Аренда
Тип помещения
Офис
Площадь помещения
650 м²
Этаж
5
Высота потолков
3.00 м
Отделка
Чистовая стандарт
Вход в помещение
Петроградский
ХАРАКТЕРИСТИКИ ЗДАНИЯ
Этажность
6
Парковка
Открытая
КОНСУЛЬТАЦИЯ НАШЕГО ЭКСПЕРТА
КОМПАНИИ БАЗА
Эксперт проекта
Вы можете позвонить или написать мне в whatsapp:
или нажмите на кнопку, чтобы записаться на просмотр, и в ближайшее время я свяжусь с вами
ОПИСАНИЕ ОБЪЕКТА

⭐ Стоимость/условия сделки:
• Арендная ставка: 845 000 руб./мес.;
• Коммунальные услуги: включены в ставку, отдельно оплачиваются электричество, клининг и интернет;
• Условия договора: от 11 мес. Обеспечительный платеж равен 1 арендной ставке;
• Оплата: УСН;
✅Характеристики:
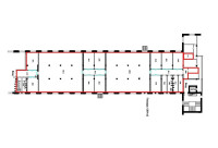
• Площадь: 650 м2;
• Расположение: 5 этаж (есть лифт);
• Режим работы: 24/7;
• Парковка: на территории бизнес-центра;
• Помещение: 2 светлых зала (open space) на 80 мест каждый. 8 просторных переговорных (часть из них можно использовать, как кабинеты). 2 кухни в разных концах помещения. 2 группы мужских и женских туалетов в разных концах помещения. 4 кладовых (хозяйственно-бытовые помещения). Помещение электрощитовой. Помещение серверной;

⭐ Работая с нами, вы получите:
✅ Высокое качество сопровождения сделки от начала и до конца;
✅ Широкий спектр сопутствующих услуг;
✅ Оптимизацию ваших расходов при заключении сделки;
✅ Экономию Ваших нервов и времени при переговорах;
✅ Подбор лучшего предложения для Вашего бизнеса или инвестиций;
✅ Доступ к уникальной базе объектов, многие из которых отсутствуют в открытой рекламе;


☎️ Звоните, организуем просмотр в удобное Вам время.
С Уважением, Яковлева Дарья.
Недвижимость Северо-Запада.

показать все описание
Заинтересовал объект?
Оставьте свой номер - наш эксперт свяжется с Вами, ответит на все вопросы и запишет на просмотр
РАСПОЛОЖЕНИЕ ОБЪЕКТА НА КАРТЕ
Заинтересовал объект?
Оставьте свой номер - наш эксперт свяжется с Вами, ответит на все вопросы и запишет на просмотр
РАСПОЛОЖЕНИЕ ОБЪЕКТА НА КАРТЕ
Другие объекты компании
Продажа
11
21.11.2024
location_white Санкт-Петербург г, Библиотечный пер, 4к2
Площадь
1579.00 м²
Цена за м²
180 633 ₽
Этажей в здании
3
Этаж
2
Аренда
9
26.03.2025
location_white Санкт-Петербург г, Итальянская ул, 17
Площадь
1404.90 м²
Цена за м²
3 600 ₽
Этажей в здании
6
Этаж
1
Продажа
9
16.04.2026
location_white Санкт-Петербург г, Обводного канала наб, 118а У
Площадь
194.00 м²
Цена за м²
290 000 ₽
Этажей в здании
3
Этаж
2
Аренда
23
30.01.2026
location_white Санкт-Петербург г, Октябрьская наб, 34к2
Площадь
2495.00 м²
Цена за м²
3 400 ₽
Этажей в здании
2
Этаж
1