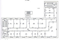
Аренда офиса кабинетной планировки, 384 м2

ПСН
Дата обновления - 10.10.2024
Итоговая цена 345 780 ₽ / мес Итоговая цена
Стоимость за 1 м² 900 ₽ / мес
Стоимость за 1 м²
ПСН
Дата обновления - 10.10.2024

Аренда офиса кабинетной планировки, 384 м2

ХАРАКТЕРИСТИКИ ПОМЕЩЕНИЯ
Тип сделки
Аренда
Тип помещения
ПСН
Площадь помещения
384 м²
Этаж
4
Высота потолков
3.00 м
Отделка
Чистовая стандарт
ХАРАКТЕРИСТИКИ ЗДАНИЯ
Этажность
4
Парковка
Открытая
КОНСУЛЬТАЦИЯ НАШЕГО ЭКСПЕРТА
КОМПАНИИ БАЗА
Эксперт проекта
Вы можете позвонить или написать мне в whatsapp:
или нажмите на кнопку, чтобы записаться на просмотр, и в ближайшее время я свяжусь с вами
ОПИСАНИЕ ОБЪЕКТА

⭐️Предлагается в аренду офисное помещение

✅Основные характеристики:
• Площадь - 338 м2;
• Этаж - 4;


⭐️Стоимость, условия сделки:
• Арендная ставка -345 780 руб/мес;
• Обеспечительный платеж - 100%);
• Срок договора - длительный (от 11 мес.)


✅Описание:
• Помещение в хорошем состоянии: с ремонтом;
• Высокие потолки
• Все коммуникации: телефонные линии, водоснабжение, канализация, теплоснабжение, электроснабжение, видеонаблюдение,пожарная сигнализация;
• Юр.статус владельца - собственность.

✅  Подойдет под любой вид деятельности;


☎️ Звоните, организуем просмотр в удобное Вам время.


⭐  Мы – АГЕНСТВО НЕДВИЖИМОСТИ СЕВЕРО-ЗАПАДА – лидирующий эксперт рынка недвижимости Санкт-Петербурга и Ленинградской области.

Наши агенты закрывают более 300 сделок в год. 

Мы строим долгосрочные деловые отношения на основе принципов честности и качественного сервиса с нашими клиентами.

⭐ Работая с нами, вы получите:
✅ Высокое качество сопровождения сделки от начала и до конца;
✅ Широкий спектр сопутствующих услуг;
✅ Оптимизацию ваших расходов при заключении сделки;
✅ Экономию Ваших нервов и времени при переговорах;
✅ Подбор лучшего предложения для Вашего бизнеса или инвестиций;
✅ Доступ к уникальной базе объектов, многие из которых отсутствуют в открытой рекламе;


Заходите в наш профиль, чтобы ознакомиться с нашими актуальными предложениями!

Если не нашли в нашем профиле точто Вам подходит  –  позвоните ☎️, и мы обязательно подберем нужный объект по самым выгодным условиям на рынке коммерческой недвижимости!

⭐  Добавьте объявление в Избранное, чтобы не потерять!


С Уважением, Яковлева Дарья.

Недвижимость Северо-Запада.

показать все описание
Заинтересовал объект?
Оставьте свой номер - наш эксперт свяжется с Вами, ответит на все вопросы и запишет на просмотр
РАСПОЛОЖЕНИЕ ОБЪЕКТА НА КАРТЕ
Заинтересовал объект?
Оставьте свой номер - наш эксперт свяжется с Вами, ответит на все вопросы и запишет на просмотр
РАСПОЛОЖЕНИЕ ОБЪЕКТА НА КАРТЕ
Другие объекты компании
Аренда
204
17.09.2025
location_white Ленинградская обл, Гатчина г, Соборная ул, 20
Площадь
70.00 м²
Цена за м²
2 142 ₽
Этажей в здании
3
Этаж
1
Аренда
152
08.11.2022
location_white Санкт-Петербург г, Индустриальный пр-кт, 27 А
Площадь
120.00 м²
Цена за м²
2 083 ₽
Этажей в здании
11
Этаж
1
Продажа
447
10.10.2024
location_white Ленинградская обл, автодорога Кола 21 км, -, -
Площадь
1797.00 м²
Цена за м²
63 995 ₽
Этажей в здании
1
Этаж
1
Продажа
208
05.09.2023
location_white Ленинградская обл, Новосаратовка д, 41К-078, 168/2
Площадь
163897.00 м²
Цена за м²
7 931 ₽