Аренда офиса в БЦ Конногвардейский

Офис
Дата обновления - 05.05.2025
Итоговая цена 248 540 ₽ / мес Итоговая цена
Стоимость за 1 м² 1 700 ₽ / мес
Стоимость за 1 м²
Офис
Дата обновления - 05.05.2025

Аренда офиса в БЦ Конногвардейский

ХАРАКТЕРИСТИКИ ПОМЕЩЕНИЯ
Тип сделки
Аренда
Тип помещения
Офис
Площадь помещения
146 м²
Этаж
2
Высота потолков
3.00 м
Отделка
Чистовая стандарт
ХАРАКТЕРИСТИКИ ЗДАНИЯ
Этажность
3
Парковка
Открытая
КОНСУЛЬТАЦИЯ НАШЕГО ЭКСПЕРТА
КОМПАНИИ БАЗА
Эксперт проекта
Вы можете позвонить или написать мне в whatsapp:
или нажмите на кнопку, чтобы записаться на просмотр, и в ближайшее время я свяжусь с вами
ОПИСАНИЕ ОБЪЕКТА
⭐Предлагаем в аренду офис в БЦ Конногвардейский в непосредственной близости от Исаакиевского собора.

✅Основные характеристики:
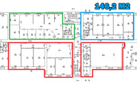
• Площадь:146,2 м2;
• Офисный блок расположен в 3-ем подъезде здания;
• Планировка: кабинетная, open space;
• Этаж: 3;
• Помещения оснащены пожарной сигнализацией, системой кондиционирования;
• Во внутреннем дворе здания имеется паркинг на 100 м/мест;
• Предоставляется услуга гостевого паркинга;
• В Центре Санкт-Петербурга, ближайшая станция метро – Адмиралтейская (950 метров);;

⭐Стоимость, условия сделки:
• Арендная ставка - 248 540 руб./мес.;
• Срок договора - длительный (от 11 мес.);
• Отдельно оплачиваются: э/энергия согласно показаниям счетчика, отопление, холодоснабжение, тех. обслуживание систем АУПС и СОУЭ, телефония/интернет, уборка, парковка.


☎ Звоните, организуем просмотр в удобное Вам время.

⭐ Мы – АГЕНТСТВО НЕДВИЖИМОСТИ СЕВЕРО-ЗАПАДА – лидирующий эксперт рынка недвижимости Санкт-Петербурга и Ленинградской области.
Наши агенты закрывают более 300 сделок в год.
Мы строим долгосрочные деловые отношения на основе принципов честности и качественного сервиса с нашими клиентами.
⭐ Работая с нами, вы получите:
✅ Высокое качество сопровождения сделки от начала и до конца;
✅ Широкий спектр сопутствующих услуг;
✅ Оптимизацию ваших расходов при заключении сделки;
✅ Экономию Ваших нервов и времени при переговорах;
✅ Доступ к уникальной базе объектов, многие из которых отсутствуют в открытой рекламе;
✅ Помогаем оформлять ипотеку!

⭐Заходите в наш профиль, чтобы ознакомиться с нашими актуальными предложениями!
Если не нашли в нашем профиле то, что Вам подходит – позвоните ☎, и мы обязательно подберем нужный объект по самым выгодным условиям на рынке коммерческой недвижимости!

⭐ Добавьте объявление в Избранное, чтобы не потерять!

С Уважением, Тлевалдэ.
Недвижимость Северо-Запада.
показать все описание
Заинтересовал объект?
Оставьте свой номер - наш эксперт свяжется с Вами, ответит на все вопросы и запишет на просмотр
РАСПОЛОЖЕНИЕ ОБЪЕКТА НА КАРТЕ
Заинтересовал объект?
Оставьте свой номер - наш эксперт свяжется с Вами, ответит на все вопросы и запишет на просмотр
РАСПОЛОЖЕНИЕ ОБЪЕКТА НА КАРТЕ
Другие объекты компании
Аренда
155
19.06.2025
location_white Санкт-Петербург г, Ольги Берггольц ул, 36стр3
Площадь
550.00 м²
Цена за м²
1 545 ₽
Этажей в здании
3
Этаж
3
Аренда
361
11.09.2024
location_white Санкт-Петербург г, Испытателей пр-кт, 37 А
metro Комендантский проспект
metro 3 мин
Площадь
400.00 м²
Цена за м²
800 ₽
Этажей в здании
5
Этаж
2
Продажа
202
21.03.2025
location_white Санкт-Петербург г, Суворовский пр-кт, 12
Площадь
529.90 м²
Цена за м²
226 457 ₽
Этажей в здании
7
Этаж
1
Продажа
96
03.09.2025
location_white Ленинградская обл, Мистолово массив, -, -
Площадь
13468.00 м²
Цена за м²
11 137 ₽
Этаж
1