Аренда офиса в БЦ Линкор 1095 м2

Офис
Дата обновления - 07.04.2025
Итоговая цена 2 024 690 ₽ / мес Итоговая цена
Стоимость за 1 м² 1 849 ₽ / мес
Стоимость за 1 м²
metro Горьковская
metro мин
Площадь помещения
1 095 м²
Офис
Дата обновления - 07.04.2025

Аренда офиса в БЦ Линкор 1095 м2

ХАРАКТЕРИСТИКИ ПОМЕЩЕНИЯ
Тип сделки
Аренда
Тип помещения
Офис
Площадь помещения
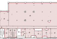
1 095 м²
Этаж
5
Высота потолков
3.00 м
Отделка
Чистовая стандарт
ХАРАКТЕРИСТИКИ ЗДАНИЯ
Этажность
8
Парковка
Подземная
КОНСУЛЬТАЦИЯ НАШЕГО ЭКСПЕРТА
Дарья Лунёва
Эксперт проекта
Вы можете позвонить или написать мне в whatsapp:
или нажмите на кнопку, чтобы записаться на просмотр, и в ближайшее время я свяжусь с вами
ОПИСАНИЕ ОБЪЕКТА
 ⭐Блок офисных помещений с видом во двор. Чистовая отделка, смешанная планировка, собственный блок санузлов.⭐

✅ Локация:
• Петроградский район, 20 минут пешком до метро Горьковская, Петроградская и пл. Ленина
• Удобный доступ к основным транспортным магистралям
• Развитая инфраструктура: кафе, банки, парковки
, Сампсониевский мост, Аптекарская набережная.

✅Офисное пространство:
• Площадь: 1095 м2
• Планировка: открытая с большим количеством кабинетов
• Высокие потолки, большие окна — много естественного света
• Окна выходят во двор

✅Техническое оснащение:
• Системы кондиционирования и вентиляции
• Высокоскоростной интернет
• Охранная сигнализация и видеонаблюдение
• Пропускной режим

✅ Дополнительно:
• Парковочные места на закрытой территории (у фасада 11500, внутри двора 8500)

✅ Условия аренды:
• Стоимость: 2 024 690 руб/мес
• Договор: от 11 мес
• Коммунальные платежи: включены в арендную ставку
• НДС: включен в арендную ставку
• Юридический адрес: предоставляется
• Прямой договор с собственником



❗ Звоните прямо сейчас! Организуем просмотр в удобное для вас время. Ваш идеальный офис уже ждёт вас!
показать все описание
Заинтересовал объект?
Оставьте свой номер - наш эксперт свяжется с Вами, ответит на все вопросы и запишет на просмотр
РАСПОЛОЖЕНИЕ ОБЪЕКТА НА КАРТЕ
Заинтересовал объект?
Оставьте свой номер - наш эксперт свяжется с Вами, ответит на все вопросы и запишет на просмотр
РАСПОЛОЖЕНИЕ ОБЪЕКТА НА КАРТЕ
Другие объекты компании
Продажа
106
17.02.2026
location_white Санкт-Петербург г, Новаторов б-р, 73
Площадь
85.20 м²
Цена за м²
269 953 ₽
Этажей в здании
12
Этаж
-1
Продажа
Архив
1
15.11.2023
location_white Ленинградская обл, Новоселье гп, Рябиновая ул, 14
Площадь
15896.00 м²
Цена за м²
25 163 ₽
Этажей в здании
8
Этаж
1
Продажа
24
14.05.2026
location_white Санкт-Петербург г, Седова ул, 47 А
Площадь
6858.00 м²
Цена за м²
41 557 ₽
Этажей в здании
10
Этаж
1
Продажа
Новинка
Окупаемость
345
01.04.2025
location_white Санкт-Петербург г, Оптиков ул, 37
Площадь
364.40 м²
Цена за м²
241 492 ₽
Этажей в здании
25
Этаж
1