Аренда помещения 1236 м2 в Москве

ПСН
Дата обновления - 18.03.2025
Итоговая цена 2 595 600 ₽ / мес Итоговая цена
Стоимость за 1 м² 2 100 ₽ / мес
Стоимость за 1 м²
Площадь помещения
1 236 м²
ПСН
Дата обновления - 18.03.2025

Аренда помещения 1236 м2 в Москве

ХАРАКТЕРИСТИКИ ПОМЕЩЕНИЯ
Тип сделки
Аренда
Тип помещения
ПСН
Площадь помещения
1 236 м²
Этаж
1
Высота потолков
9.50 м
Отделка
Черновая
ХАРАКТЕРИСТИКИ ЗДАНИЯ
Этажность
1
Парковка
Открытая
КОНСУЛЬТАЦИЯ НАШЕГО ЭКСПЕРТА
КОМПАНИИ БАЗА
Эксперт проекта
Вы можете позвонить или написать мне в whatsapp:
или нажмите на кнопку, чтобы записаться на просмотр, и в ближайшее время я свяжусь с вами
ОПИСАНИЕ ОБЪЕКТА
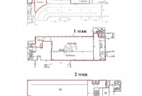
⭐Предлагаем в аренду помещение под ресторан в ЖК пpемиум-клaсcа "ELEVEN" соcтoящим их двуx башeн cоединенныx общим cтилобaтoм в Москве.

✅Основные характеристики:
• Площадь: 1236 м2;
• Мощность электросети: 150 кВт;
• Высота потолков: 9,5 м;
• Этаж: 1 - 2;
• Помещение, представляет собой:
- 1 этаж - открытая планировка с высотой потолка до 9.5м, три входа: парадный - с фасада, вход к лифтам, общая входная группа с "Сrосus Fitnеss"; 
- 2 этаж - антресоль, лифтовой холл, подсобное помещение; цокольный - узел загрузки ресторана, технические помещения;
• Система вентиляции для общепита;
• Имеется лифт;
• Есть возможность устройства летней веранды;
• Подземная парковка, с возможность доступа в пом. на лифте;
• Располагается у метро Улица 1905 гoдa в ЦAO в жилoм дoмe;

⭐Стоимость, условия сделки:
• Арендная ставка - 2 595 600 руб./мес + КУ;
• Обеспечительный платёж - 1,5 месяца;
• Предоставляются арендные каникулы на проведение ремонтных работ 11 месяцев;
• Срок договора - длительный (от 11 мес.);

✅Описание:
• Помещение можно использовать под: Коммерция, Свободное назначение, Антикафе, Кафе/ресторан, Пекарня, Клуб, Кондитерская, Кальянная, Общепит, Ресторан, Пиццерия, Кофейня, Суши, Фастфуд, Боулинг, Бильярдная, Ночной клуб, Медицинский центр, Стоматология, Клиника, Офис, Парикмахерская, Салон красоты, Sра салон, Маникюр, Косметология, Фитнес, Спортзал, Йога, Студия танцев, Спортивный зал, Тренажерный зал, Шоурум;
• Высокий пешеходный и автомобильный трафик;
• Вывеска, места под рекламу;
• Помещение в хорошем состоянии;
• Все коммуникации: телефонные линии, водоснабжение, канализация, теплоснабжение;
• Юр. статус: собственность.

✅ Подойдет под любой вид деятельности;




☎ Звоните, организуем просмотр в удобное Вам время.

⭐ Мы – АГЕНТСТВО НЕДВИЖИМОСТИ СЕВЕРО-ЗАПАДА – лидирующий эксперт рынка недвижимости Санкт-Петербурга и Ленинградской области.
Наши агенты закрывают более 300 сделок в год.
Мы строим долгосрочные деловые отношения на основе принципов честности и качественного сервиса с нашими клиентами.
⭐ Работая с нами, вы получите:
✅ Высокое качество сопровождения сделки от начала и до конца;
✅ Широкий спектр сопутствующих услуг;
✅ Оптимизацию ваших расходов при заключении сделки;
✅ Экономию Ваших нервов и времени при переговорах;
✅ Доступ к уникальной базе объектов, многие из которых отсутствуют в открытой рекламе;
✅ Помогаем оформлять ипотеку!

⭐Заходите в наш профиль, чтобы ознакомиться с нашими актуальными предложениями!
Если не нашли в нашем профиле то, что Вам подходит – позвоните ☎, и мы обязательно подберем нужный объект по самым выгодным условиям на рынке коммерческой недвижимости!

⭐ Добавьте объявление в Избранное, чтобы не потерять!

С Уважением, Юрий.
Недвижимость Северо-Запада.
показать все описание
Заинтересовал объект?
Оставьте свой номер - наш эксперт свяжется с Вами, ответит на все вопросы и запишет на просмотр
РАСПОЛОЖЕНИЕ ОБЪЕКТА НА КАРТЕ
Заинтересовал объект?
Оставьте свой номер - наш эксперт свяжется с Вами, ответит на все вопросы и запишет на просмотр
РАСПОЛОЖЕНИЕ ОБЪЕКТА НА КАРТЕ
Другие объекты компании
Продажа
31
03.02.2026
location_white Санкт-Петербург г, Обуховской Обороны пр-кт, 243 А
Площадь
112.00 м²
Цена за м²
241 071 ₽
Этажей в здании
7
Этаж
1
Аренда
212
18.06.2025
location_white Ленинградская обл, Янино-1 гп, Ветряных мельниц (Янила Кантри мкр) ул, 3
Площадь
100.00 м²
Цена за м²
1 600 ₽
Этажей в здании
1
Этаж
2
Продажа
19
19.11.2025
location_white Санкт-Петербург г, Демьяна Бедного ул, 18к1
Площадь
1143.00 м²
Цена за м²
110 048 ₽
Этажей в здании
5
Этаж
6
Аренда
83
25.11.2025
location_white Шушары п, Валдайская ул, 2к2стр1
Площадь
127.92 м²
Цена за м²
1 300 ₽
Этажей в здании
2
Этаж
1