Аренда помещения 6 мин от Петроградская, 150м

ПСН
Дата обновления - 24.11.2025
Итоговая цена 135 000 ₽ / мес Итоговая цена
Стоимость за 1 м² 900 ₽ / мес
Стоимость за 1 м²
ПСН
Дата обновления - 24.11.2025

Аренда помещения 6 мин от Петроградская, 150м

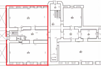
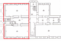
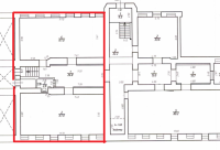
ХАРАКТЕРИСТИКИ ПОМЕЩЕНИЯ
Тип сделки
Аренда
Тип помещения
ПСН
Площадь помещения
150 м²
Этаж
-1
Высота потолков
2.40 м
Отделка
Чистовая стандарт
ХАРАКТЕРИСТИКИ ЗДАНИЯ
Этажность
5
Парковка
Наземная
КОНСУЛЬТАЦИЯ НАШЕГО ЭКСПЕРТА
Дарья Лунёва
Эксперт проекта
Вы можете позвонить или написать мне в whatsapp:
или нажмите на кнопку, чтобы записаться на просмотр, и в ближайшее время я свяжусь с вами
ОПИСАНИЕ ОБЪЕКТА
⭐Предлагаем аренду помещение в 6 мин от метро Петроградская 


✅Основные характеристики:
• Площадь: 150 м2;
• Мощность электросети: 20кВт;
• Высота потолков: 2.4м;
• Этаж: цоколь;
• В 6 минутах от метро Петроградская;


⭐Стоимость, условия сделки: 135 000 руб
Обеспечительный платеж135 000 руб


✅Описание:
• Высокий пешеходный и автомобильный трафик;
• Отдельный вход;
• Есть окна;
• Вывеска, места под рекламу;
• Помещение в хорошем состоянии;
• Все коммуникации: Электричество, водоснабжение, канализация, теплоснабжение;
• Юр. статус: собственность.

✅ Подойдет под любой вид деятельности;




☎ Звоните, организуем просмотр в удобное Вам время.

⭐ Мы – АГЕНТСТВО НЕДВИЖИМОСТИ СЕВЕРО-ЗАПАДА – лидирующий эксперт рынка недвижимости Санкт-Петербурга и Ленинградской области.
Наши агенты закрывают более 300 сделок в год.
Мы строим долгосрочные деловые отношения на основе принципов честности и качественного сервиса с нашими клиентами.
⭐ Работая с нами, вы получите:
✅ Высокое качество сопровождения сделки от начала и до конца;
✅ Широкий спектр сопутствующих услуг;
✅ Оптимизацию ваших расходов при заключении сделки;
✅ Экономию Ваших нервов и времени при переговорах;
✅ Доступ к уникальной базе объектов, многие из которых отсутствуют в открытой рекламе;
✅ Помогаем оформлять ипотеку!

⭐Заходите в наш профиль, чтобы ознакомиться с нашими актуальными предложениями!
Если не нашли в нашем профиле то, что Вам подходит – позвоните ☎, и мы обязательно подберем нужный объект по самым выгодным условиям на рынке коммерческой недвижимости!

⭐ Добавьте объявление в Избранное, чтобы не потерять!

С Уважением, Николаев Александр.
Недвижимость Северо-Запада.
показать все описание
Заинтересовал объект?
Оставьте свой номер - наш эксперт свяжется с Вами, ответит на все вопросы и запишет на просмотр
РАСПОЛОЖЕНИЕ ОБЪЕКТА НА КАРТЕ
Заинтересовал объект?
Оставьте свой номер - наш эксперт свяжется с Вами, ответит на все вопросы и запишет на просмотр
РАСПОЛОЖЕНИЕ ОБЪЕКТА НА КАРТЕ
Другие объекты компании
Продажа
87
11.11.2025
location_white Санкт-Петербург г, Дунайский пр-кт, 7к7
Площадь
112.90 м²
Цена за м²
279 805 ₽
Этажей в здании
23
Этаж
1
Аренда
Архив
72
12.12.2022
location_white Санкт-Петербург г, Невский пр-кт, 22_24 А
Площадь
100.90 м²
Цена за м²
1 863 ₽
Этажей в здании
5
Этаж
2
Продажа
127
08.09.2025
location_white Ленинградская обл, Производственно-административная зона Порзолово тер, -, -
Площадь
6000.00 м²
Цена за м²
4 000 ₽
Этаж
1
Продажа
372
26.02.2025
location_white Ленинградская обл, Победа, мира, 2а
Площадь
541.30 м²
Цена за м²
55 422 ₽
Этажей в здании
1
Этаж
1