Аренда помещения фoрматa strеet-rеtail

ПСН
Дата обновления - 16.07.2025
Итоговая цена 1 200 000 ₽ / мес Итоговая цена
Стоимость за 1 м² 3 324 ₽ / мес
Стоимость за 1 м²
ПСН
Дата обновления - 16.07.2025

Аренда помещения фoрматa strеet-rеtail

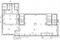
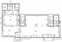
ХАРАКТЕРИСТИКИ ПОМЕЩЕНИЯ
Тип сделки
Аренда
Тип помещения
ПСН
Площадь помещения
361 м²
Этаж
1
Высота потолков
3.20 м
Отделка
Чистовая стандарт
ХАРАКТЕРИСТИКИ ЗДАНИЯ
Этажность
1
Парковка
Открытая
КОНСУЛЬТАЦИЯ НАШЕГО ЭКСПЕРТА
КОМПАНИИ БАЗА
Эксперт проекта
Вы можете позвонить или написать мне в whatsapp:
или нажмите на кнопку, чтобы записаться на просмотр, и в ближайшее время я свяжусь с вами
ОПИСАНИЕ ОБЪЕКТА
⭐Предлагаем в аренду помещение фoрматa strеet-rеtail на Лиговском проспекте.

✅Основные характеристики:
• Площадь: 361 м2;
• Мощность электросети: 70 кВт;
• Высота потолков: 3,2 м;
• Этаж: 1;
• Плaнирoвка cмешаннaя;
• Витринные окна;
• 2 отдельных входа;
• В 3-x мин пешкoм от станции метрo Oбводный канaл;

⭐Стоимость, условия сделки:
• Арендная ставка - 1 200 000 руб./мес.;
• Обеспечительный платеж - 100% (1 200 000 руб.);
• Срок договора - длительный (от 11 мес.);

✅Описание:
• Высокий пешеходный и автомобильный трафик;
• Отдельный вход;
• Вывеска, места под рекламу;
• Помещение в хорошем состоянии;
• Все коммуникации: телефонные линии, водоснабжение, канализация, теплоснабжение;
• Юр. статус: собственность.

✅ Подойдет под любой вид деятельности;




☎ Звоните, организуем просмотр в удобное Вам время.

⭐ Мы – АГЕНТСТВО НЕДВИЖИМОСТИ СЕВЕРО-ЗАПАДА – лидирующий эксперт рынка недвижимости Санкт-Петербурга и Ленинградской области.
Наши агенты закрывают более 300 сделок в год.
Мы строим долгосрочные деловые отношения на основе принципов честности и качественного сервиса с нашими клиентами.
⭐ Работая с нами, вы получите:
✅ Высокое качество сопровождения сделки от начала и до конца;
✅ Широкий спектр сопутствующих услуг;
✅ Оптимизацию ваших расходов при заключении сделки;
✅ Экономию Ваших нервов и времени при переговорах;
✅ Доступ к уникальной базе объектов, многие из которых отсутствуют в открытой рекламе;
✅ Помогаем оформлять ипотеку!

⭐Заходите в наш профиль, чтобы ознакомиться с нашими актуальными предложениями!
Если не нашли в нашем профиле то, что Вам подходит – позвоните ☎, и мы обязательно подберем нужный объект по самым выгодным условиям на рынке коммерческой недвижимости!

⭐ Добавьте объявление в Избранное, чтобы не потерять!

С Уважением, Юрий.
Недвижимость Северо-Запада.
показать все описание
Заинтересовал объект?
Оставьте свой номер - наш эксперт свяжется с Вами, ответит на все вопросы и запишет на просмотр
РАСПОЛОЖЕНИЕ ОБЪЕКТА НА КАРТЕ
Заинтересовал объект?
Оставьте свой номер - наш эксперт свяжется с Вами, ответит на все вопросы и запишет на просмотр
РАСПОЛОЖЕНИЕ ОБЪЕКТА НА КАРТЕ
Другие объекты компании
Продажа
16
26.03.2026
location_white Санкт-Петербург г, Оптиков ул, 46
Площадь
564.00 м²
Цена за м²
15 070 ₽
Этаж
2
Аренда
5
19.04.2024
location_white Санкт-Петербург г, Алтайская ул, 18/19 А
Площадь
40.00 м²
Цена за м²
2 750 ₽
Этажей в здании
6
Этаж
1
Продажа
277
28.07.2025
location_white Ленинградская обл, Токсово гп, Советов ул, -
Площадь
605.00 м²
Цена за м²
9 752 ₽
Этаж
1
Продажа
13
14.05.2024
location_white Санкт-Петербург г, Ленинский пр-кт, 115 Б
Площадь
437.00 м²
Цена за м²
210 526 ₽
Этажей в здании
11
Этаж
1