Аренда помещения на первой линии ЖК Куб, 106.7 м

ПСН
Дата обновления - 26.11.2025
Итоговая цена 266 750 ₽ / мес Итоговая цена
Стоимость за 1 м² 2 500 ₽ / мес
Стоимость за 1 м²
ПСН
Дата обновления - 26.11.2025

Аренда помещения на первой линии ЖК Куб, 106.7 м

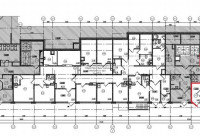
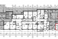
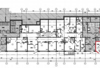
ХАРАКТЕРИСТИКИ ПОМЕЩЕНИЯ
Тип сделки
Аренда
Тип помещения
ПСН
Площадь помещения
107 м²
Этаж
1
Высота потолков
4.00 м
Отделка
Черновая
Вход в помещение
Московский
ХАРАКТЕРИСТИКИ ЗДАНИЯ
Этажность
16
Парковка
Наземная
КОНСУЛЬТАЦИЯ НАШЕГО ЭКСПЕРТА
Артур Гаджимурадов
Эксперт проекта
Вы можете позвонить или написать мне в whatsapp:
или нажмите на кнопку, чтобы записаться на просмотр, и в ближайшее время я свяжусь с вами
ОПИСАНИЕ ОБЪЕКТА
⭐Предлагаем в аренду помещение 106.7 м2

✅Основные характеристики:
• Площадь: 106.7 м2;
• Мощность электросети: 70 кВт;
• Высота потолков: 4 м;
• Этаж: 1;


⭐Стоимость, условия сделки:
• Арендная ставка - 266 750 руб./мес.;
• Обеспечительный платеж - 100% (266 750 руб.);
• Срок договора - длительный (от 11 мес.);


✅Описание:
• Высокий пешеходный и автомобильный трафик;
• Отдельный вход с улицы;
• Вывеска, места под рекламу;
• В данном дoмe на 1 этaже будeт рacположeнa гopoдскaя дeтcкая пoликлиникa бoлee чeм нa 600 кв.м.
• Юр. статус: собственность.

✅ Подойдет под любой вид деятельности;




☎ Звоните, организуем просмотр в удобное Вам время.

⭐ Мы – АГЕНТСТВО НЕДВИЖИМОСТИ СЕВЕРО-ЗАПАДА – лидирующий эксперт рынка недвижимости Санкт-Петербурга и Ленинградской области.
Наши агенты закрывают более 300 сделок в год.
Мы строим долгосрочные деловые отношения на основе принципов честности и качественного сервиса с нашими клиентами.
⭐ Работая с нами, вы получите:
✅ Высокое качество сопровождения сделки от начала и до конца;
✅ Широкий спектр сопутствующих услуг;
✅ Оптимизацию ваших расходов при заключении сделки;
✅ Экономию Ваших нервов и времени при переговорах;
✅ Доступ к уникальной базе объектов, многие из которых отсутствуют в открытой рекламе;
✅ Помогаем оформлять ипотеку!

⭐Заходите в наш профиль, чтобы ознакомиться с нашими актуальными предложениями!
Если не нашли в нашем профиле то, что Вам подходит – позвоните ☎, и мы обязательно подберем нужный объект по самым выгодным условиям на рынке коммерческой недвижимости!

⭐ Добавьте объявление в Избранное, чтобы не потерять!

С Уважением, Артур Гаджимурадов.
Недвижимость Северо-Запада.
показать все описание
Заинтересовал объект?
Оставьте свой номер - наш эксперт свяжется с Вами, ответит на все вопросы и запишет на просмотр
РАСПОЛОЖЕНИЕ ОБЪЕКТА НА КАРТЕ
Заинтересовал объект?
Оставьте свой номер - наш эксперт свяжется с Вами, ответит на все вопросы и запишет на просмотр
РАСПОЛОЖЕНИЕ ОБЪЕКТА НА КАРТЕ
Другие объекты компании
Продажа
250
08.09.2025
location_white Ленинградская обл, Производственно-административная зона Порзолово тер, -, -
Площадь
12641.00 м²
Цена за м²
3 955 ₽
Этаж
1
Продажа
Архив
3
07.05.2025
location_white Санкт-Петербург г, Димитрова ул, 2
Площадь
71.40 м²
Цена за м²
310 924 ₽
Этажей в здании
1
Этаж
1
Аренда
12
19.02.2026
location_white Ленинградская обл, Янино-1 гп, Заводская ул, 18к2
Площадь
530.30 м²
Цена за м²
1 400 ₽
Этажей в здании
1
Этаж
1
Продажа
278
10.04.2025
location_white Ленинградская обл, Сосново п, Ленинградская ул, 9
Площадь
410.00 м²
Цена за м²
121 951 ₽
Этажей в здании
2
Этаж
1