Аренда помещения под БАР 100м2 на Невском!

ПСН
Дата обновления - 15.10.2025
Итоговая цена 300 000 ₽ / мес Итоговая цена
Стоимость за 1 м² 2 982 ₽ / мес
Стоимость за 1 м²
ПСН
Дата обновления - 15.10.2025

Аренда помещения под БАР 100м2 на Невском!

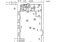
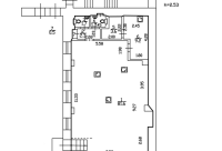
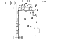
ХАРАКТЕРИСТИКИ ПОМЕЩЕНИЯ
Тип сделки
Аренда
Тип помещения
ПСН
Площадь помещения
101 м²
Этаж
1
Высота потолков
3.00 м
Отделка
Чистовая стандарт
Вход в помещение
Центральный
ХАРАКТЕРИСТИКИ ЗДАНИЯ
Этажность
5
Парковка
Наземная
КОНСУЛЬТАЦИЯ НАШЕГО ЭКСПЕРТА
КОМПАНИИ БАЗА
Эксперт проекта
Вы можете позвонить или написать мне в whatsapp:
или нажмите на кнопку, чтобы записаться на просмотр, и в ближайшее время я свяжусь с вами
ОПИСАНИЕ ОБЪЕКТА
⭐Предлагаем в аренду эксклюзивное предложение в центре, первая арка от Невского проспекта, с огромным туристическим трафиком на углу улиц Рубинштейна и Невского проспекта! 

✅Основные характеристики:
• Площадь: 100,6 м2;
• Мощность электросети: 35 кВт;
• Высота потолков: 2,53м;
• Этаж: 1;
• В 5 минутах пешком от метро Маяковская;


⭐Стоимость, условия сделки:
• Арендный платёж -  300 000 руб./мес. 
• Обеспечительный платеж - 100% (300 000 руб.);


✅Описание:
• Высокий пешеходный и автомобильный трафик;
• Огромный туристический трафик. 
• Улица Рубинштейна славиться своим количеством ресторанов и является улицей притяжения для всего города;
• Вентиляция, кондиционер, охрана, сигнализация, противопожарная сигнализация. 
• Отдельный вход со двора;
• 5 мокрых точек;
• Панорамные окна;
• Вывеска, места под рекламу;
• Помещение в хорошем состоянии;
• Все коммуникации: телефонные линии, водоснабжение, канализация, теплоснабжение;
• Юр. статус: собственность.

✅ Подойдет под любой вид деятельности;




☎ Звоните, организуем просмотр в удобное Вам время.

⭐ Мы – АГЕНТСТВО НЕДВИЖИМОСТИ СЕВЕРО-ЗАПАДА – лидирующий эксперт рынка недвижимости Санкт-Петербурга и Ленинградской области.
Наши агенты закрывают более 300 сделок в год.
Мы строим долгосрочные деловые отношения на основе принципов честности и качественного сервиса с нашими клиентами.
⭐ Работая с нами, вы получите:
✅ Высокое качество сопровождения сделки от начала и до конца;
✅ Широкий спектр сопутствующих услуг;
✅ Оптимизацию ваших расходов при заключении сделки;
✅ Экономию Ваших нервов и времени при переговорах;
✅ Доступ к уникальной базе объектов, многие из которых отсутствуют в открытой рекламе;
✅ Помогаем оформлять ипотеку!

⭐Заходите в наш профиль, чтобы ознакомиться с нашими актуальными предложениями!
Если не нашли в нашем профиле то, что Вам подходит – позвоните ☎, и мы обязательно подберем нужный объект по самым выгодным условиям на рынке коммерческой недвижимости!

⭐ Добавьте объявление в Избранное, чтобы не потерять!

С Уважением, Игнатьев Тимур.
Недвижимость Северо-Запада.
показать все описание
Заинтересовал объект?
Оставьте свой номер - наш эксперт свяжется с Вами, ответит на все вопросы и запишет на просмотр
РАСПОЛОЖЕНИЕ ОБЪЕКТА НА КАРТЕ
Заинтересовал объект?
Оставьте свой номер - наш эксперт свяжется с Вами, ответит на все вопросы и запишет на просмотр
РАСПОЛОЖЕНИЕ ОБЪЕКТА НА КАРТЕ
Другие объекты компании
Аренда
171
07.08.2025
location_white Санкт-Петербург г, Разъезжая ул, 5
Площадь
133.30 м²
Цена за м²
1 470 ₽
Этажей в здании
5
Этаж
6
Продажа
108
10.09.2024
location_white Ленинградская обл, 2-й (Разметелево промзона) проезд, участок 1, -
Площадь
896.00 м²
Цена за м²
120 000 ₽
Этажей в здании
1
Этаж
1
Продажа
124
11.08.2023
location_white Санкт-Петербург г, Гранитная ул, 34 А
Площадь
39.20 м²
Цена за м²
240 000 ₽
Этажей в здании
4
Этаж
1
Продажа
69
25.11.2025
location_white Ленинградская обл, Мурино г, Оборонная ул, 2к3
Площадь
203.60 м²
Цена за м²
208 742 ₽
Этажей в здании
9
Этаж
1