Аренда ПСН 137 кв.м.

ПСН
Дата обновления - 19.06.2025
Итоговая цена 205 500 ₽ / мес Итоговая цена
Стоимость за 1 м² 1 500 ₽ / мес
Стоимость за 1 м²
ПСН
Дата обновления - 19.06.2025

Аренда ПСН 137 кв.м.

ХАРАКТЕРИСТИКИ ПОМЕЩЕНИЯ
Тип сделки
Аренда
Тип помещения
ПСН
Площадь помещения
137 м²
Этаж
1
Высота потолков
3.00 м
Отделка
Черновая
ХАРАКТЕРИСТИКИ ЗДАНИЯ
Этажность
15
Парковка
Открытая
КОНСУЛЬТАЦИЯ НАШЕГО ЭКСПЕРТА
КОМПАНИИ БАЗА
Эксперт проекта
Вы можете позвонить или написать мне в whatsapp:
или нажмите на кнопку, чтобы записаться на просмотр, и в ближайшее время я свяжусь с вами
ОПИСАНИЕ ОБЪЕКТА
⭐Предлагаем в аренду помещение свободного назначения в  ЖК Солнечный город

✅Основные характеристики:
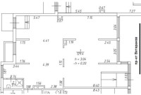
• Площадь: 137 м2;
• Мощность электросети: 27 кВт;
• Высота потолков:3,07м;
• Отдельный вход с улицы, витрины;
​​​​​​​• Помещение с черновой отделкой;
• Этаж: 1;


⭐Стоимость, условия сделки:
• Арендная ставка -205 500 руб./мес.(1500 за 1 кв.м.);
• Обеспечительный платеж - 100% (205 500 руб.);
• Срок договора - длительный (от 11 мес.);


✅Описание:
• Помещение расположено на оживленном перекрестке с многочисленными остановками общественного транспорта.;
• Вывеска, места под рекламу;
• Помещение с черновой отделкой;
• Подведены все необходимые коммуникации: электричество, централизованное отопление, ХВС и ГВС, вентиляция
• Юр. статус: собственность.

✅ Подойдет под любой вид деятельности;




☎ Звоните, организуем просмотр в удобное Вам время.

⭐ Мы – АГЕНТСТВО НЕДВИЖИМОСТИ СЕВЕРО-ЗАПАДА – лидирующий эксперт рынка недвижимости Санкт-Петербурга и Ленинградской области.
Наши агенты закрывают более 300 сделок в год.
Мы строим долгосрочные деловые отношения на основе принципов честности и качественного сервиса с нашими клиентами.
⭐ Работая с нами, вы получите:
✅ Высокое качество сопровождения сделки от начала и до конца;
✅ Широкий спектр сопутствующих услуг;
✅ Оптимизацию ваших расходов при заключении сделки;
✅ Экономию Ваших нервов и времени при переговорах;
✅ Доступ к уникальной базе объектов, многие из которых отсутствуют в открытой рекламе;
✅ Помогаем оформлять ипотеку!

⭐Заходите в наш профиль, чтобы ознакомиться с нашими актуальными предложениями!
Если не нашли в нашем профиле то, что Вам подходит – позвоните ☎, и мы обязательно подберем нужный объект по самым выгодным условиям на рынке коммерческой недвижимости!

⭐ Добавьте объявление в Избранное, чтобы не потерять!

С Уважением, Сигов Даниил.
Недвижимость Северо-Запада.
показать все описание
Заинтересовал объект?
Оставьте свой номер - наш эксперт свяжется с Вами, ответит на все вопросы и запишет на просмотр
РАСПОЛОЖЕНИЕ ОБЪЕКТА НА КАРТЕ
Заинтересовал объект?
Оставьте свой номер - наш эксперт свяжется с Вами, ответит на все вопросы и запишет на просмотр
РАСПОЛОЖЕНИЕ ОБЪЕКТА НА КАРТЕ
Другие объекты компании
Продажа
11
16.03.2026
location_white Ленинградская обл, Луга г, Володарского пр-кт, 11
Площадь
46.40 м²
Цена за м²
161 637 ₽
Этажей в здании
5
Этаж
1
Продажа
80
01.12.2025
location_white Санкт-Петербург г, Лермонтовский пр-кт, 48
Площадь
870.00 м²
Цена за м²
206 896 ₽
Этажей в здании
2
Этаж
1
Продажа
250
10.09.2025
location_white Ленинградская обл, Новое Девяткино д, Школьная ул, -
Площадь
1306.00 м²
Цена за м²
16 079 ₽
Этаж
1
Аренда
226
20.10.2025
location_white Санкт-Петербург г, Ленинский пр-кт, 134
Площадь
112.00 м²
Цена за м²
3 000 ₽
Этажей в здании
9
Этаж
1