Аренда теплого склада + офис в д. Янино

Склад
Дата обновления - 25.08.2025
Итоговая цена 1 254 750 ₽ / мес Итоговая цена
Стоимость за 1 м² 750 ₽ / мес
Стоимость за 1 м²
Склад
Дата обновления - 25.08.2025

Аренда теплого склада + офис в д. Янино

ХАРАКТЕРИСТИКИ ПОМЕЩЕНИЯ
Тип сделки
Аренда
Тип помещения
Склад
Площадь помещения
1 673 м²
Этаж
1
Высота потолков
7.00 м
Отделка
Чистовая стандарт
ХАРАКТЕРИСТИКИ ЗДАНИЯ
Этажность
2
Парковка
Открытая
КОНСУЛЬТАЦИЯ НАШЕГО ЭКСПЕРТА
КОМПАНИИ БАЗА
Эксперт проекта
Вы можете позвонить или написать мне в whatsapp:
или нажмите на кнопку, чтобы записаться на просмотр, и в ближайшее время я свяжусь с вами
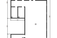
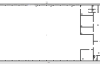
ОПИСАНИЕ ОБЪЕКТА
⭐Предлагаем в аренду теплый склад + офисный блок в п. Янино.

✅Основные характеристики:
• Общая площадь: 1673 м2;
• Площадь склада: 1113 м2;
• Площадь офиса и подсобных помещений: 560 м2;
• Отопление газовая котельная, вулканы в складской части;
• Обеспыленные полы;
​​​​​​​• Ролетные ворота;
• Мощность электросети: 150 кВт;
• Высота потолков: 7 м;
• Этаж: 1-2;
• В п. Янино-1, Всеволожский р-н;

⭐Стоимость, условия сделки:
• Арендная ставка - 1 254 750 руб./мес., 750 рублей за 1 м2;
• Обеспечительный платеж - 100% ( 1 254 750 руб.);
• Срок договора - длительный (от 11 мес.);


☎ Звоните, организуем просмотр в удобное Вам время.

⭐ Мы – АГЕНТСТВО НЕДВИЖИМОСТИ СЕВЕРО-ЗАПАДА – лидирующий эксперт рынка недвижимости Санкт-Петербурга и Ленинградской области.
Наши агенты закрывают более 300 сделок в год.
Мы строим долгосрочные деловые отношения на основе принципов честности и качественного сервиса с нашими клиентами.
⭐ Работая с нами, вы получите:
✅ Высокое качество сопровождения сделки от начала и до конца;
✅ Широкий спектр сопутствующих услуг;
✅ Оптимизацию ваших расходов при заключении сделки;
✅ Экономию Ваших нервов и времени при переговорах;
✅ Доступ к уникальной базе объектов, многие из которых отсутствуют в открытой рекламе;
✅ Помогаем оформлять ипотеку!

⭐Заходите в наш профиль, чтобы ознакомиться с нашими актуальными предложениями!
Если не нашли в нашем профиле то, что Вам подходит – позвоните ☎, и мы обязательно подберем нужный объект по самым выгодным условиям на рынке коммерческой недвижимости!

⭐ Добавьте объявление в Избранное, чтобы не потерять!

С Уважением, Дмитрий.
Недвижимость Северо-Запада.
показать все описание
Заинтересовал объект?
Оставьте свой номер - наш эксперт свяжется с Вами, ответит на все вопросы и запишет на просмотр
РАСПОЛОЖЕНИЕ ОБЪЕКТА НА КАРТЕ
Заинтересовал объект?
Оставьте свой номер - наш эксперт свяжется с Вами, ответит на все вопросы и запишет на просмотр
РАСПОЛОЖЕНИЕ ОБЪЕКТА НА КАРТЕ
Другие объекты компании
Аренда
8
25.07.2023
location_white Санкт-Петербург г, Вазаский пер, 3стр1
Площадь
66.90 м²
Цена за м²
2 500 ₽
Этажей в здании
14
Этаж
1
Аренда
67
01.09.2025
location_white Ленинградская обл, Порзолово тер, Раздольная ул, 35
Площадь
4860.00 м²
Цена за м²
650 ₽
Этажей в здании
1
Этаж
1
Продажа
0
05.12.2024
location_white Ленинградская обл, Новое Девяткино д, Главная ул, 10
Площадь
137.00 м²
Цена за м²
313 868 ₽
Этажей в здании
1
Этаж
1
Продажа
Архив
5
24.01.2023
location_white Санкт-Петербург г, 13-я В.О. линия, 78 А
Площадь
560.00 м²
Цена за м²
62 500 ₽
Этажей в здании
5
Этаж
4