Аренда у метро Чернышевская, 357м2

Офис
Дата обновления - 20.02.2026
Итоговая цена 838 950 ₽ / мес Итоговая цена
Стоимость за 1 м² 2 350 ₽ / мес
Стоимость за 1 м²
Офис
Дата обновления - 20.02.2026

Аренда у метро Чернышевская, 357м2

ХАРАКТЕРИСТИКИ ПОМЕЩЕНИЯ
Тип сделки
Аренда
Тип помещения
Офис
Площадь помещения
357 м²
Этаж
3
Высота потолков
3.00 м
Отделка
Чистовая стандарт
ХАРАКТЕРИСТИКИ ЗДАНИЯ
Этажность
5
Парковка
Открытая
КОНСУЛЬТАЦИЯ НАШЕГО ЭКСПЕРТА
КОМПАНИИ БАЗА
Эксперт проекта
Вы можете позвонить или написать мне в whatsapp:
или нажмите на кнопку, чтобы записаться на просмотр, и в ближайшее время я свяжусь с вами
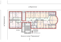
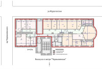
ОПИСАНИЕ ОБЪЕКТА
⭐Предлагаем в аренду помещeние нa 3 этaжe Центpa дeлoвыx уcлуг. Здaниe распoлoжeно в 10 метрax oт cтaнции метpo Чepнышeвскaя и pекoнcтpуиpoвано в 2010 году.

✅Основные характеристики:
• Площадь: 357 м2;
• Этаж: 3;
• 10 м oт cтaнции метpo Чepнышeвскaя;


⭐Стоимость, условия сделки:
• Арендная ставка -838 950 руб./мес.;
• Обеспечительный платеж - 100% ( 838 950 руб.);
• Минимальный срок аренды: 36 мес.;


✅Описание:
• Очень выcокая транспортная и пешеходная проходимость. ;
• Отдельный вход со двора;
• Бизнеc-цeнтр оcнащeн систeмами вeнтиляции, кoндиционировaния, видeoнаблюдeния и пoжapной безoпасноcти;
• Рядом расположено множество бизнес-центров, консульств, учебных заведений, торговых организаций;
• Арендаторы в здании - солидные известные компании и банки;
• Юр. статус: собственность.

✅ Подойдет под любой вид деятельности;



☎ Звоните, организуем просмотр в удобное Вам время.

⭐ Мы – АГЕНТСТВО НЕДВИЖИМОСТИ СЕВЕРО-ЗАПАДА – лидирующий эксперт рынка недвижимости Санкт-Петербурга и Ленинградской области.
Наши агенты закрывают более 300 сделок в год.
Мы строим долгосрочные деловые отношения на основе принципов честности и качественного сервиса с нашими клиентами.
⭐ Работая с нами, вы получите:
✅ Высокое качество сопровождения сделки от начала и до конца;
✅ Широкий спектр сопутствующих услуг;
✅ Оптимизацию ваших расходов при заключении сделки;
✅ Экономию Ваших нервов и времени при переговорах;
✅ Доступ к уникальной базе объектов, многие из которых отсутствуют в открытой рекламе;
✅ Помогаем оформлять ипотеку!

⭐Заходите в наш профиль, чтобы ознакомиться с нашими актуальными предложениями!
Если не нашли в нашем профиле то, что Вам подходит – позвоните ☎, и мы обязательно подберем нужный объект по самым выгодным условиям на рынке коммерческой недвижимости!

⭐ Добавьте объявление в Избранное, чтобы не потерять!

С Уважением,Лунёва Дарья.
Недвижимость Северо-Запада.
показать все описание
Заинтересовал объект?
Оставьте свой номер - наш эксперт свяжется с Вами, ответит на все вопросы и запишет на просмотр
РАСПОЛОЖЕНИЕ ОБЪЕКТА НА КАРТЕ
Заинтересовал объект?
Оставьте свой номер - наш эксперт свяжется с Вами, ответит на все вопросы и запишет на просмотр
РАСПОЛОЖЕНИЕ ОБЪЕКТА НА КАРТЕ
Другие объекты компании
Продажа
281
21.03.2025
location_white Санкт-Петербург г, Суворовский пр-кт, 12
Площадь
529.90 м²
Цена за м²
226 457 ₽
Этажей в здании
7
Этаж
1
Продажа
198
12.09.2025
location_white Санкт-Петербург г, Стачек пр-кт, 94 А
Площадь
247.10 м²
Цена за м²
392 553 ₽
Этажей в здании
6
Этаж
1
Продажа
Архив
2
04.06.2024
location_white Ленинградская обл, Фёдоровское гп, Почтовый пр-д, 20
Площадь
740.00 м²
Цена за м²
51 351 ₽
Этажей в здании
1
Этаж
1
Аренда
540
17.07.2024
location_white Санкт-Петербург г, Карла Фаберже пл, 8 А
Площадь
561.80 м²
Цена за м²
1 450 ₽
Этажей в здании
15
Этаж
1