Мансардный офис рядом с метро, 304 м2

Офис
Дата обновления - 22.01.2026
Итоговая цена 559 912 ₽ / мес Итоговая цена
Стоимость за 1 м² 1 841 ₽ / мес
Стоимость за 1 м²
Офис
Дата обновления - 22.01.2026

Мансардный офис рядом с метро, 304 м2

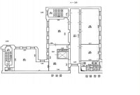
ХАРАКТЕРИСТИКИ ПОМЕЩЕНИЯ
Тип сделки
Аренда
Тип помещения
Офис
Площадь помещения
304 м²
Этаж
4
Высота потолков
3.00 м
Отделка
Чистовая стандарт
ХАРАКТЕРИСТИКИ ЗДАНИЯ
Этажность
5
Парковка
Открытая
КОНСУЛЬТАЦИЯ НАШЕГО ЭКСПЕРТА
Дарья Лунёва
Эксперт проекта
Вы можете позвонить или написать мне в whatsapp:
или нажмите на кнопку, чтобы записаться на просмотр, и в ближайшее время я свяжусь с вами
ОПИСАНИЕ ОБЪЕКТА
⭐Предлагаем в аренду офис в историческом центе города.

✅Основные характеристики:
• Площадь: 304 м2;
• Этаж: 3;
• 2 парковочных места
• В 1-й минуте от метро Маяковская;

⭐Стоимость, условия сделки:
• Арендная ставка - 559 912 руб./мес.;
• Обеспечительный платеж - 100% (559 912 руб.);
• Срок договора - длительный (от 11 мес.);
• Арендная плата включает в себя: 20% НДС, охрану здания, коммунальные платежи, уборку арендованных помещений;
• Отдельно оплачиваются: парковка и интернет; 

✅Описание:
• Бизнес-центр класса В+, год постройки 2019; 
• Планировка: кабинетно-коридорная;
• Помещение в хорошем состоянии, выполнен качественный ремонт;
• Развитая инфраструктура района: различные кафе и рестораны, магазины и фитнес клубы, банки и нотариусы. 
• В бизнес-центре расположено кафе для арендаторов; 



показать все описание
Заинтересовал объект?
Оставьте свой номер - наш эксперт свяжется с Вами, ответит на все вопросы и запишет на просмотр
РАСПОЛОЖЕНИЕ ОБЪЕКТА НА КАРТЕ
Заинтересовал объект?
Оставьте свой номер - наш эксперт свяжется с Вами, ответит на все вопросы и запишет на просмотр
РАСПОЛОЖЕНИЕ ОБЪЕКТА НА КАРТЕ
Другие объекты компании
Продажа
97
16.05.2023
location_white Санкт-Петербург г, Прилукская ул, 35 А
Площадь
3900.00 м²
Цена за м²
64 102 ₽
Этажей в здании
6
Этаж
6
Аренда
Архив
0
30.08.2024
location_white Санкт-Петербург г, Литейный пр-кт, 26
Площадь
510.00 м²
Цена за м²
2 500 ₽
Этажей в здании
6
Этаж
2
Продажа
425
21.11.2024
location_white Санкт-Петербург г, Библиотечный пер, 4к2
Площадь
473.00 м²
Цена за м²
221 987 ₽
Этажей в здании
3
Этаж
1
Аренда
239
26.03.2025
location_white Санкт-Петербург г, Итальянская ул, 17
Площадь
1404.90 м²
Цена за м²
3 600 ₽
Этажей в здании
6
Этаж
1