ОСЗ под медицину 1260м2

ОСЗ
Дата обновления - 01.09.2025
Итоговая цена 1 500 000 ₽ / мес Итоговая цена
Стоимость за 1 м² 1 190 ₽ / мес
Стоимость за 1 м²
Площадь помещения
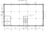
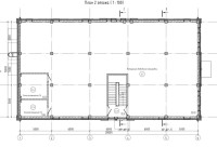
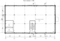
1 260 м²
ОСЗ
Дата обновления - 01.09.2025

ОСЗ под медицину 1260м2

ХАРАКТЕРИСТИКИ ПОМЕЩЕНИЯ
Тип сделки
Аренда
Тип помещения
ОСЗ
Площадь помещения
1 260 м²
Этаж
1
Высота потолков
3.20 м
Отделка
Чистовая стандарт
ХАРАКТЕРИСТИКИ ЗДАНИЯ
Этажность
3
Парковка
Наземная
КОНСУЛЬТАЦИЯ НАШЕГО ЭКСПЕРТА
КОМПАНИИ БАЗА
Эксперт проекта
Вы можете позвонить или написать мне в whatsapp:
или нажмите на кнопку, чтобы записаться на просмотр, и в ближайшее время я свяжусь с вами
ОПИСАНИЕ ОБЪЕКТА
⭐Предлагаем в аренду ОСЗ в Выборгском райне!

✅Основные характеристики:
• Площадь: 1260м2;
• Мощность электросети: 150кВт;
• Высота потолков:3,2м;
• Этаж: 1-3;
• В 15 минутах от метро Проспект Просвещения ;

⭐Стоимость, условия сделки:
• Арендная ставка -1 500 000 руб./мес.;
• Обеспечительный платеж - 100% (1 500 000руб.);
• Срок договора - длительный (от 11 мес.);

✅Описание:
• Высокий пешеходный и автомобильный трафик;
• Парковка на 10 мест;
• Витринные окна;
• Вывеска, места под рекламу;
• Помещение в хорошем состоянии;
• Все коммуникации: телефонные линии, водоснабжение, канализация, теплоснабжение;
• Юр. статус: собственность.

✅ Подойдет под любой вид деятельности;




☎ Звоните, организуем просмотр в удобное Вам время.

⭐ Мы – АГЕНТСТВО НЕДВИЖИМОСТИ СЕВЕРО-ЗАПАДА – лидирующий эксперт рынка недвижимости Санкт-Петербурга и Ленинградской области.
Наши агенты закрывают более 300 сделок в год.
Мы строим долгосрочные деловые отношения на основе принципов честности и качественного сервиса с нашими клиентами.
⭐ Работая с нами, вы получите:
✅ Высокое качество сопровождения сделки от начала и до конца;
✅ Широкий спектр сопутствующих услуг;
✅ Оптимизацию ваших расходов при заключении сделки;
✅ Экономию Ваших нервов и времени при переговорах;
✅ Доступ к уникальной базе объектов, многие из которых отсутствуют в открытой рекламе;
✅ Помогаем оформлять ипотеку!

⭐Заходите в наш профиль, чтобы ознакомиться с нашими актуальными предложениями!
Если не нашли в нашем профиле то, что Вам подходит – позвоните ☎, и мы обязательно подберем нужный объект по самым выгодным условиям на рынке коммерческой недвижимости!

⭐ Добавьте объявление в Избранное, чтобы не потерять!

С Уважением, Даниил.
Недвижимость Северо-Запада.
показать все описание
Заинтересовал объект?
Оставьте свой номер - наш эксперт свяжется с Вами, ответит на все вопросы и запишет на просмотр
РАСПОЛОЖЕНИЕ ОБЪЕКТА НА КАРТЕ
Заинтересовал объект?
Оставьте свой номер - наш эксперт свяжется с Вами, ответит на все вопросы и запишет на просмотр
РАСПОЛОЖЕНИЕ ОБЪЕКТА НА КАРТЕ
Другие объекты компании
Продажа
14
29.03.2024
location_white Московская обл, Подольск г, Большая Серпуховская ул, 19
Площадь
6345.00 м²
Цена за м²
233 397 ₽
Этажей в здании
1
Этаж
1
Аренда
59
14.07.2025
location_white Ленинградская обл, Победа, мира, 2а
Площадь
541.30 м²
Цена за м²
554 ₽
Этажей в здании
1
Этаж
1
Продажа
9
02.07.2024
location_white Санкт-Петербург г, Вознесенский пр-кт, 25 А
Площадь
1700.00 м²
Цена за м²
117 647 ₽
Этажей в здании
4
Этаж
1
Продажа
9
19.09.2024
location_white Санкт-Петербург г, Заставская ул, 33 А
Площадь
378.90 м²
Цена за м²
200 000 ₽
Этажей в здании
3
Этаж
2