Помещение с сетевым якорным арендатором!

ПСН
Дата обновления - 15.02.2024
Итоговая цена 62 000 000 ₽ Итоговая цена
Стоимость за 1 м² 102 479 ₽
Стоимость за 1 м²
Площадь помещения
605 м²
ПСН
Дата обновления - 15.02.2024

Помещение с сетевым якорным арендатором!

ХАРАКТЕРИСТИКИ ПОМЕЩЕНИЯ
Тип сделки
Продажа
Тип помещения
ПСН
Площадь помещения
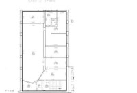
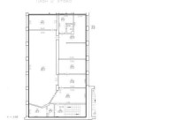
605 м²
Этаж
1
Высота потолков
3.00 м
Отделка
Чистовая стандарт
ХАРАКТЕРИСТИКИ ЗДАНИЯ
Этажность
10
Парковка
Наземная
КОНСУЛЬТАЦИЯ НАШЕГО ЭКСПЕРТА
Александр Николаев
Эксперт проекта
Вы можете позвонить или написать мне в whatsapp:
или нажмите на кнопку, чтобы записаться на просмотр, и в ближайшее время я свяжусь с вами
ОПИСАНИЕ ОБЪЕКТА
⭐Предлагаем в продажу помещение 605м с якорным сетевым арендатором Пятерочка!

✅Основные характеристики:
• Площадь: 603.5 м2;

1 этаж -  Пятеpoчкa: аренда 400 000 руб + КУ договор до 2027 года

2 этaж - аpeндaтoр спopтивный клуб Лeнингрaдeц аренда 150 000 + КУ договор до 2028 года

• Мощность электросети: 32 кВт;
• Высота потолков: 3 м;
• Этаж: 1;
• В 3 минутах от остановки общественного транспорта;


⭐Стоимость, условия сделки:
• Стоимость помещения: 62 000 000 руб.
• Общая арендная ставка 550 000 руб + КУ



✅Описание:
• Новый магазин, успешно увеличивает свой товарооборот;
• Высокий пешеходный и автомобильный трафик;
• Отдельный вход/ 2 входа;
• Большие окна;
• Вывеска, места под рекламу;
• Помещение в хорошем состоянии;
• Все коммуникации: телефонные линии, водоснабжение, канализация, теплоснабжение;
• Юр. статус: собственность.

✅ Подойдет под любой вид деятельности;



☎ Звоните, организуем просмотр в удобное Вам время.

⭐ Мы – АГЕНТСТВО НЕДВИЖИМОСТИ СЕВЕРО-ЗАПАДА – лидирующий эксперт рынка недвижимости Санкт-Петербурга и Ленинградской области.
Наши агенты закрывают более 300 сделок в год.
Мы строим долгосрочные деловые отношения на основе принципов честности и качественного сервиса с нашими клиентами.
⭐ Работая с нами, вы получите:
✅ Высокое качество сопровождения сделки от начала и до конца;
✅ Широкий спектр сопутствующих услуг;
✅ Оптимизацию ваших расходов при заключении сделки;
✅ Экономию Ваших нервов и времени при переговорах;
✅ Доступ к уникальной базе объектов, многие из которых отсутствуют в открытой рекламе;

⭐Заходите в наш профиль, чтобы ознакомиться с нашими актуальными предложениями!
Если не нашли в нашем профиле то, что Вам подходит – позвоните ☎, и мы обязательно подберем нужный объект по самым выгодным условиям на рынке коммерческой недвижимости!

⭐ Добавьте объявление в Избранное, чтобы не потерять!

С Уважением, Александр Николаев.
Недвижимость Северо-Запада.
показать все описание
Заинтересовал объект?
Оставьте свой номер - наш эксперт свяжется с Вами, ответит на все вопросы и запишет на просмотр
РАСПОЛОЖЕНИЕ ОБЪЕКТА НА КАРТЕ
Заинтересовал объект?
Оставьте свой номер - наш эксперт свяжется с Вами, ответит на все вопросы и запишет на просмотр
РАСПОЛОЖЕНИЕ ОБЪЕКТА НА КАРТЕ
Другие объекты компании
Продажа
10
21.10.2025
location_white Ленинградская обл, Всеволожск г, Плоткина ул, 16
Площадь
31.20 м²
Цена за м²
198 717 ₽
Этажей в здании
1
Этаж
1
Продажа
382
02.11.2024
location_white Санкт-Петербург г, Индустриальный пр-кт, 76
Площадь
1680.00 м²
Цена за м²
180 000 ₽
Этажей в здании
1
Этаж
1
Продажа
22
14.10.2025
location_white Санкт-Петербург г, Революции ш, 69
Площадь
270.50 м²
Цена за м²
149 685 ₽
Этажей в здании
1
Этаж
1
Продажа
228
24.04.2025
location_white Санкт-Петербург г, Невский пр-кт, 180/2 А
Площадь
110.00 м²
Цена за м²
459 000 ₽
Этажей в здании
5
Этаж
1