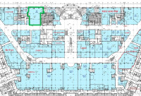
Помещение в ТЦ с отдельным входом, 403 м2

ПСН
Дата обновления - 19.03.2026
Итоговая цена 604 500 ₽ / мес Итоговая цена
Стоимость за 1 м² 1 500 ₽ / мес
Стоимость за 1 м²
ПСН
Дата обновления - 19.03.2026

Помещение в ТЦ с отдельным входом, 403 м2

ХАРАКТЕРИСТИКИ ПОМЕЩЕНИЯ
Тип сделки
Аренда
Тип помещения
ПСН
Площадь помещения
403 м²
Этаж
1
Высота потолков
4.00 м
Отделка
Чистовая стандарт
ХАРАКТЕРИСТИКИ ЗДАНИЯ
Этажность
2
Парковка
Наземная
КОНСУЛЬТАЦИЯ НАШЕГО ЭКСПЕРТА
Артур Гаджимурадов
Эксперт проекта
Вы можете позвонить или написать мне в whatsapp:
или нажмите на кнопку, чтобы записаться на просмотр, и в ближайшее время я свяжусь с вами
ОПИСАНИЕ ОБЪЕКТА
⭐Предлагаем в аренду помещение 403 м2 с отдельным входом с улицы, на высоком трафике. Находится в ТРЦ Парк Молл.

✅Основные характеристики:
• Площадь: 403 м2;
• Мощность электросети: 50 кВт;
• Высота потолков: 4 м;
• Этаж: 1;
• В 20 минутах от метро Проспект Просвещения;

⭐Стоимость, условия сделки:
• Арендная ставка - 604 500 руб./мес. (1500 руб./м2 + к/у + 115 руб./м2 - эксплуатация);
• Обеспечительный платеж - 100% (604 500 руб.);
• Срок договора - длительный (от 11 мес.);

✅Описание:
• Высокий пешеходный и автомобильный трафик;
• Отдельный вход/ 2 входа;
• Большие витринные окна;
• Вывеска, места под рекламу;
• Помещение в хорошем состоянии;
• Все коммуникации: телефонные линии, водоснабжение, канализация, теплоснабжение;
• Юр. статус: собственность.

✅ Подойдет под любой вид деятельности;

☎ Звоните, организуем просмотр в удобное Вам время.

⭐ Мы – АГЕНТСТВО НЕДВИЖИМОСТИ СЕВЕРО-ЗАПАДА – лидирующий эксперт рынка недвижимости Санкт-Петербурга и Ленинградской области.
Наши агенты закрывают более 300 сделок в год.
Мы строим долгосрочные деловые отношения на основе принципов честности и качественного сервиса с нашими клиентами.
⭐ Работая с нами, вы получите:
✅ Высокое качество сопровождения сделки от начала и до конца;
✅ Широкий спектр сопутствующих услуг;
✅ Оптимизацию ваших расходов при заключении сделки;
✅ Экономию Ваших нервов и времени при переговорах;
✅ Доступ к уникальной базе объектов, многие из которых отсутствуют в открытой рекламе;
✅ Помогаем оформлять ипотеку!

⭐Заходите в наш профиль, чтобы ознакомиться с нашими актуальными предложениями!
Если не нашли в нашем профиле то, что Вам подходит – позвоните ☎, и мы обязательно подберем нужный объект по самым выгодным условиям на рынке коммерческой недвижимости!

⭐ Добавьте объявление в Избранное, чтобы не потерять!

С Уважением, Артур Гаджимурадов.
Недвижимость Северо-Запада.
показать все описание
Заинтересовал объект?
Оставьте свой номер - наш эксперт свяжется с Вами, ответит на все вопросы и запишет на просмотр
РАСПОЛОЖЕНИЕ ОБЪЕКТА НА КАРТЕ
Заинтересовал объект?
Оставьте свой номер - наш эксперт свяжется с Вами, ответит на все вопросы и запишет на просмотр
РАСПОЛОЖЕНИЕ ОБЪЕКТА НА КАРТЕ
Другие объекты компании
Аренда
499
19.09.2024
location_white Санкт-Петербург г, Петроградская наб, 36 А
Площадь
1095.00 м²
Цена за м²
1 849 ₽
Этажей в здании
8
Этаж
5
Аренда
Архив
124
11.12.2022
location_white Красное Село г, Юных пионеров ул, 38
Площадь
306.00 м²
Цена за м²
1 000 ₽
Этажей в здании
2
Этаж
1
Продажа
179
12.11.2025
location_white Санкт-Петербург г, Энергетиков пр-кт, 2к1 стр 1
Площадь
89.00 м²
Цена за м²
269 662 ₽
Этажей в здании
15
Этаж
1
Продажа
359
17.10.2024
location_white Санкт-Петербург г, Богатырский пр-кт, 7к9 А
Площадь
1498.00 м²
Цена за м²
253 671 ₽
Этажей в здании
1
Этаж
1