Продажа 446,5 м2

ПСН
Дата обновления - 26.01.2026
Итоговая цена 107 160 000 ₽ Итоговая цена
Стоимость за 1 м² 240 000 ₽
Стоимость за 1 м²
ПСН
Дата обновления - 26.01.2026

Продажа 446,5 м2

ХАРАКТЕРИСТИКИ ПОМЕЩЕНИЯ
Тип сделки
Продажа
Тип помещения
ПСН
Площадь помещения
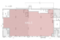
447 м²
Этаж
1
Высота потолков
4.85 м
Отделка
Чистовая стандарт
ХАРАКТЕРИСТИКИ ЗДАНИЯ
Этажность
2
Парковка
Открытая
КОНСУЛЬТАЦИЯ НАШЕГО ЭКСПЕРТА
КОМПАНИИ БАЗА
Эксперт проекта
Вы можете позвонить или написать мне в whatsapp:
или нажмите на кнопку, чтобы записаться на просмотр, и в ближайшее время я свяжусь с вами
ОПИСАНИЕ ОБЪЕКТА
⭐Предлагаем в продажу ПСН

✅Основные характеристики:
• Площадь: 446,5м2;
• Мощность электросети: 100 кВт;
• Высота потолков:4.85м;
• Этаж: 1;


⭐Стоимость, условия сделки:
• Стоимость - 107 160 000 рублей
1. Договор:
ДКП с обременением
2. Рассрочка:
* Максимальный срок рассрочки 12 мес
* ⁠Минимальный ПВ 40%, остаток - обсуждаемо
* ⁠Удорожание:
Рассрочка на 12 мес - 8,7% на остаток
Рассрочка на 6 мес - 3,3% на остаток
• Предположительный арендный поток -1 026 950 руб./мес.(2300 за м2);
• На данный момент есть заинтересованный арендатор магазин Магнит по ставке 959 975 рублей ( 2150 за м2)


✅Описание:
• Высокий пешеходный и автомобильный трафик;
• 4 отдельных входа;
• Вывеска, места под рекламу;
• Помещение в хорошем состоянии;
• Все коммуникации: телефонные линии, водоснабжение, канализация, теплоснабжение;
• Юр. статус: собственность.

✅ Подойдет под любой вид деятельности;




☎ Звоните, организуем просмотр в удобное Вам время.

⭐ Мы – АГЕНТСТВО НЕДВИЖИМОСТИ СЕВЕРО-ЗАПАДА – лидирующий эксперт рынка недвижимости Санкт-Петербурга и Ленинградской области.
Наши агенты закрывают более 300 сделок в год.
Мы строим долгосрочные деловые отношения на основе принципов честности и качественного сервиса с нашими клиентами.
⭐ Работая с нами, вы получите:
✅ Высокое качество сопровождения сделки от начала и до конца;
✅ Широкий спектр сопутствующих услуг;
✅ Оптимизацию ваших расходов при заключении сделки;
✅ Экономию Ваших нервов и времени при переговорах;
✅ Доступ к уникальной базе объектов, многие из которых отсутствуют в открытой рекламе;
✅ Помогаем оформлять ипотеку!

⭐Заходите в наш профиль, чтобы ознакомиться с нашими актуальными предложениями!
Если не нашли в нашем профиле то, что Вам подходит – позвоните ☎, и мы обязательно подберем нужный объект по самым выгодным условиям на рынке коммерческой недвижимости!

⭐ Добавьте объявление в Избранное, чтобы не потерять!

С Уважением, Сигов Даниил.
Недвижимость Северо-Запада.
показать все описание
Заинтересовал объект?
Оставьте свой номер - наш эксперт свяжется с Вами, ответит на все вопросы и запишет на просмотр
РАСПОЛОЖЕНИЕ ОБЪЕКТА НА КАРТЕ
Заинтересовал объект?
Оставьте свой номер - наш эксперт свяжется с Вами, ответит на все вопросы и запишет на просмотр
РАСПОЛОЖЕНИЕ ОБЪЕКТА НА КАРТЕ
Другие объекты компании
Продажа
Архив
0
28.11.2023
location_white Ленинградская обл, Мурино г, Воронцовский б-р, 19к1
Площадь
130.80 м²
Цена за м²
350 000 ₽
Этажей в здании
14
Этаж
1
Аренда
267
07.08.2025
location_white Санкт-Петербург г, Тюшина ул, 9/7 А
Площадь
2760.00 м²
Цена за м²
2 500 ₽
Этажей в здании
6
Этаж
1
Аренда
Архив
0
01.04.2025
location_white Санкт-Петербург г, Богатырский пр-кт, 10
Площадь
108.00 м²
Цена за м²
1 666 ₽
Этажей в здании
1
Этаж
1
Продажа
Архив
1
08.04.2024
location_white Ленинградская обл, Новоселье гп, Красносельское тер. ТСН, 18
Площадь
1447.00 м²
Цена за м²
155 494 ₽
Этажей в здании
5
Этаж
1