Продажа 770 м2 с ремонтом.

ПСН
Дата обновления - 15.02.2024
Итоговая цена 115 000 000 ₽ Итоговая цена
Стоимость за 1 м² 149 350 ₽
Стоимость за 1 м²
Площадь помещения
770 м²
ПСН
Дата обновления - 15.02.2024

Продажа 770 м2 с ремонтом.

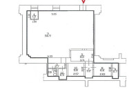
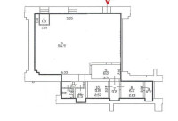
ХАРАКТЕРИСТИКИ ПОМЕЩЕНИЯ
Тип сделки
Продажа
Тип помещения
ПСН
Площадь помещения
770 м²
Этаж
1
Высота потолков
3.90 м
Отделка
Чистовая стандарт
ХАРАКТЕРИСТИКИ ЗДАНИЯ
Этажность
5
Парковка
Открытая
КОНСУЛЬТАЦИЯ НАШЕГО ЭКСПЕРТА
Дмитрий Утробин
Эксперт проекта
Вы можете позвонить или написать мне в whatsapp:
или нажмите на кнопку, чтобы записаться на просмотр, и в ближайшее время я свяжусь с вами
ОПИСАНИЕ ОБЪЕКТА
⭐ Предлагаем в продажу помещение СВОБОДНОГО НАЗНАЧЕНИЯ общей пл. 770 кв.м. в котором сейчас расположен ресторан. В данный момент помещение оборудовано под Ресторан русской кухни Садко (655.2 кв.м.) и Кофейню Любава (115 кв.м).

✅ Основные характеристики:

• Площадь: 770 м2;
• Мощность электросети: 194 кВт;
• Высота потолков: 3,9 м;
• Этаж: 1;
• В 10 минутах от метро Садовая;


⭐ Стоимость, условия сделки:

• Цена объекта - 115 000 000 рублей;



✅ Описание:

• Высокий пешеходный и автомобильный трафик;
• Отдельный вход;
• Большие окна;
• Вывеска, места под рекламу;
• Помещение в хорошем состоянии;
• Все коммуникации: телефонные линии, водоснабжение, канализация, теплоснабжение;
• Юр. статус: собственность.

✅ Подойдет под любой вид деятельности;

☎ Звоните, организуем просмотр в удобное Вам время.

⭐ Мы – АГЕНТСТВО НЕДВИЖИМОСТИ СЕВЕРО-ЗАПАДА – лидирующий эксперт рынка недвижимости Санкт-Петербурга и Ленинградской области.
Наши агенты закрывают более 300 сделок в год.
Мы строим долгосрочные деловые отношения на основе принципов честности и качественного сервиса с нашими клиентами.

⭐ Работая с нами, вы получите:


✅ Высокое качество сопровождения сделки от начала и до конца;
✅ Широкий спектр сопутствующих услуг;
✅ Оптимизацию ваших расходов при заключении сделки;
✅ Экономию Ваших нервов и времени при переговорах;
✅ Доступ к уникальной базе объектов, многие из которых отсутствуют в открытой рекламе;

⭐Заходите в наш профиль, чтобы ознакомиться с нашими актуальными предложениями!


Если не нашли в нашем профиле то, что Вам подходит – позвоните ☎, и мы обязательно подберем нужный объект по самым выгодным условиям на рынке коммерческой недвижимости!

⭐ Добавьте объявление в Избранное, чтобы не потерять!

С Уважением, Дмитрий.
Недвижимость Северо-Запада.
показать все описание
Заинтересовал объект?
Оставьте свой номер - наш эксперт свяжется с Вами, ответит на все вопросы и запишет на просмотр
РАСПОЛОЖЕНИЕ ОБЪЕКТА НА КАРТЕ
Заинтересовал объект?
Оставьте свой номер - наш эксперт свяжется с Вами, ответит на все вопросы и запишет на просмотр
РАСПОЛОЖЕНИЕ ОБЪЕКТА НА КАРТЕ
Другие объекты компании
Аренда
221
23.01.2025
location_white Санкт-Петербург г, 2-я Жерновская ул, 27 А
Площадь
300.00 м²
Цена за м²
1 500 ₽
Этажей в здании
1
Этаж
1
Аренда
143
14.07.2025
location_white Санкт-Петербург г, Обводного канала наб, 23 Б
Площадь
1800.00 м²
Цена за м²
2 300 ₽
Этажей в здании
4
Этаж
3
Продажа
19
19.12.2022
location_white Санкт-Петербург г, Прибрежная ул, 4 А
Площадь
60.00 м²
Цена за м²
300 000 ₽
Этажей в здании
14
Этаж
1
Продажа
32
08.10.2025
location_white Ленинградская обл, Производственно-административная зона Порзолово тер, -, -
Площадь
8967.00 м²
Цена за м²
3 500 ₽
Этаж
1