Продажа ГАБ с окупаемостью 6.8 лет, 432м2

ПСН
Дата обновления - 25.04.2025
Итоговая цена 40 000 000 ₽ Итоговая цена
Стоимость за 1 м² 92 592 ₽
Стоимость за 1 м²
ПСН
Дата обновления - 25.04.2025

Продажа ГАБ с окупаемостью 6.8 лет, 432м2

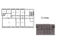
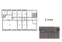
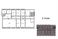
ХАРАКТЕРИСТИКИ ПОМЕЩЕНИЯ
Тип сделки
Продажа
Тип помещения
ПСН
Площадь помещения
432 м²
Этаж
1
Высота потолков
3.00 м
Отделка
Чистовая стандарт
ХАРАКТЕРИСТИКИ ЗДАНИЯ
Этажность
2
Парковка
Открытая
КОНСУЛЬТАЦИЯ НАШЕГО ЭКСПЕРТА
КОМПАНИИ БАЗА
Эксперт проекта
Вы можете позвонить или написать мне в whatsapp:
или нажмите на кнопку, чтобы записаться на просмотр, и в ближайшее время я свяжусь с вами
ОПИСАНИЕ ОБЪЕКТА
⭐Предлагаем в продажу ГАБ с окупаемостью 6.8 лет при надёжных арендаторах

✅Основные характеристики:
• Площадь: 432м2 (191,1м2 - Пункты выдачи и 226,4м2 Отель);
• Мощность электросети: 35кВт;
• Высота потолков: 3м;
• Этаж: 1 и 2;


⭐Стоимость, условия сделки:
• Цена объекта - 45 000 000 руб. 40 000 000 руб.;
• Арендаторы - Ozon, Wildberries, Яндекс Маркет и Отель;
• Арендная ставка - 490 000 руб./мес. (238 875 руб. ПВЗ и 249 040 руб. Отель) + К/У;
• Срок договоров - краткосрочные (11 мес.);


✅Описание:
• Высокий пешеходный и автомобильный трафик;
• 2 отдельных входа;
• Земельный участок (доля в общей долевой собственности , 221/2184);
• Вывеска, места под рекламу;
• Помещение в хорошем состоянии;
• Все коммуникации: телефонные линии, водоснабжение, канализация, теплоснабжение;
• Юр. статус: собственность.

✅ Подойдет под любой вид деятельности;




☎ Звоните, организуем просмотр в удобное Вам время.

⭐ Мы – АГЕНТСТВО НЕДВИЖИМОСТИ СЕВЕРО-ЗАПАДА – лидирующий эксперт рынка недвижимости Санкт-Петербурга и Ленинградской области.
Наши агенты закрывают более 300 сделок в год.
Мы строим долгосрочные деловые отношения на основе принципов честности и качественного сервиса с нашими клиентами.
⭐ Работая с нами, вы получите:
✅ Высокое качество сопровождения сделки от начала и до конца;
✅ Широкий спектр сопутствующих услуг;
✅ Оптимизацию ваших расходов при заключении сделки;
✅ Экономию Ваших нервов и времени при переговорах;
✅ Доступ к уникальной базе объектов, многие из которых отсутствуют в открытой рекламе;
✅ Помогаем оформлять ипотеку!

⭐Заходите в наш профиль, чтобы ознакомиться с нашими актуальными предложениями!
Если не нашли в нашем профиле то, что Вам подходит – позвоните ☎, и мы обязательно подберем нужный объект по самым выгодным условиям на рынке коммерческой недвижимости!

⭐ Добавьте объявление в Избранное, чтобы не потерять!

С Уважением, Михаил.
Недвижимость Северо-Запада.
показать все описание
Заинтересовал объект?
Оставьте свой номер - наш эксперт свяжется с Вами, ответит на все вопросы и запишет на просмотр
РАСПОЛОЖЕНИЕ ОБЪЕКТА НА КАРТЕ
Заинтересовал объект?
Оставьте свой номер - наш эксперт свяжется с Вами, ответит на все вопросы и запишет на просмотр
РАСПОЛОЖЕНИЕ ОБЪЕКТА НА КАРТЕ
Другие объекты компании
Аренда
144
29.10.2025
location_white Санкт-Петербург г, Академика Павлова ул, 5литераВ
Площадь
190.60 м²
Цена за м²
4 000 ₽
Этажей в здании
8
Этаж
1
Аренда
Архив
0
08.11.2022
location_white Ленинградская обл, Янино-1 гп, Ветряных мельниц (Янила Кантри мкр) ул, 3
Площадь
22.90 м²
Цена за м²
3 515 ₽
Этажей в здании
1
Этаж
1
Продажа
67
15.01.2026
location_white Ленинградская обл, Арли тер. ТСН, Елагинская линия ул, 4051
Площадь
651.40 м²
Цена за м²
92 109 ₽
Этажей в здании
1
Этаж
1
Продажа
38
27.02.2026
location_white Санкт-Петербург г, Арцеуловская ал, 9стр1
Площадь
60.10 м²
Цена за м²
396 006 ₽
Этажей в здании
9
Этаж
1