Продажа ЗУ под строительство магазина Магнит

УЧАСТОК ЗЕМЛИ
Дата обновления - 11.02.2026
Итоговая цена 21 400 000 ₽ Итоговая цена
Стоимость за 1 м² 10 449 ₽
Стоимость за 1 м²
УЧАСТОК ЗЕМЛИ
Дата обновления - 11.02.2026

Продажа ЗУ под строительство магазина Магнит

ХАРАКТЕРИСТИКИ ПОМЕЩЕНИЯ
Тип сделки
Продажа
Тип помещения
УЧАСТОК ЗЕМЛИ
Площадь помещения
2 048 м²
Этаж
1
Высота потолков
0.00 м
ХАРАКТЕРИСТИКИ ЗДАНИЯ
КОНСУЛЬТАЦИЯ НАШЕГО ЭКСПЕРТА
Максим Уваров
Эксперт проекта
Вы можете позвонить или написать мне в whatsapp:
или нажмите на кнопку, чтобы записаться на просмотр, и в ближайшее время я свяжусь с вами
ОПИСАНИЕ ОБЪЕКТА
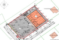
⭐Предлагаем в продажу земельный участок под строительство торгового магазина Магнит с проектом застройки в д. Тихвинка, Гатчинского округа Ленинградской области.

✅Основные характеристики:
• Площадь участка: 20 соток (2048 м2);
• Кадастровый номер: 47:23:0230001:724;
• Категория земель: земли населенных пунктов;
• Вид разрешенного использования: Торговое;
• Площадь застройки 531 м2;
• Мощность электросети: 150 кВт;
• Канализация и вода локальные;
• РНС на здание магазина;

⭐Стоимость, условия сделки:
• Цена участка: 21 400 000 рублей;
• Стоимость строительства: 25 000 000 рублей (из расчета 50 000 рублей/кв.м.) за 500 кв.м.;
• Стоимость общих затрат на проект: 46 400 000 рублей;
• Арендатор: согласован продуктовый Retail (Магнит) на 500 м2 за 750 000 рублей/мес;
• Окупаемость: 5,2 лет;
• Доходность: 19%.




☎ Звоните, организуем просмотр в удобное Вам время.

⭐ Мы – АГЕНТСТВО НЕДВИЖИМОСТИ СЕВЕРО-ЗАПАДА – лидирующий эксперт рынка недвижимости Санкт-Петербурга и Ленинградской области.
Наши агенты закрывают более 300 сделок в год.
Мы строим долгосрочные деловые отношения на основе принципов честности и качественного сервиса с нашими клиентами.
⭐ Работая с нами, вы получите:
✅ Высокое качество сопровождения сделки от начала и до конца;
✅ Широкий спектр сопутствующих услуг;
✅ Оптимизацию ваших расходов при заключении сделки;
✅ Экономию Ваших нервов и времени при переговорах;
✅ Доступ к уникальной базе объектов, многие из которых отсутствуют в открытой рекламе;
✅ Помогаем оформлять ипотеку!

⭐Заходите в наш профиль, чтобы ознакомиться с нашими актуальными предложениями!
Если не нашли в нашем профиле то, что Вам подходит – позвоните ☎, и мы обязательно подберем нужный объект по самым выгодным условиям на рынке коммерческой недвижимости!

⭐ Добавьте объявление в Избранное, чтобы не потерять!

С Уважением, Максим Уваров.
Недвижимость Северо-Запада.
показать все описание
Заинтересовал объект?
Оставьте свой номер - наш эксперт свяжется с Вами, ответит на все вопросы и запишет на просмотр
РАСПОЛОЖЕНИЕ ОБЪЕКТА НА КАРТЕ
Заинтересовал объект?
Оставьте свой номер - наш эксперт свяжется с Вами, ответит на все вопросы и запишет на просмотр
РАСПОЛОЖЕНИЕ ОБЪЕКТА НА КАРТЕ
Другие объекты компании
Продажа
20
06.05.2026
location_white Ленинградская обл, Лодейное Поле г, Ленина пр-кт, 44а
Площадь
320.00 м²
Цена за м²
112 500 ₽
Этажей в здании
1
Этаж
1
Продажа
209
10.10.2025
location_white Санкт-Петербург г, Ивана Куликова ул, 12стр1
Площадь
56.90 м²
Цена за м²
316 344 ₽
Этажей в здании
14
Этаж
1
Продажа
112
27.06.2025
location_white Санкт-Петербург г, Тореза пр-кт, 75к2
Площадь
268.00 м²
Цена за м²
97 014 ₽
Этажей в здании
5
Этаж
1
Аренда
27
21.01.2025
location_white Санкт-Петербург г, Савушкина ул, 16 А
Площадь
74.30 м²
Цена за м²
3 000 ₽
Этажей в здании
9
Этаж
1