Продажа ГАБ с пятерочкой

ПСН
Дата обновления - 04.08.2025
Итоговая цена 270 000 000 ₽ Итоговая цена
Стоимость за 1 м² 461 775 ₽
Стоимость за 1 м²
Площадь помещения
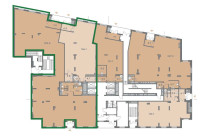
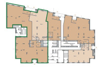
585 м²
ПСН
Дата обновления - 04.08.2025

Продажа ГАБ с пятерочкой

ХАРАКТЕРИСТИКИ ПОМЕЩЕНИЯ
Тип сделки
Продажа
Тип помещения
ПСН
Площадь помещения
585 м²
Этаж
1
Высота потолков
4.00 м
Отделка
Чистовая стандарт
ХАРАКТЕРИСТИКИ ЗДАНИЯ
Этажность
15
Парковка
Открытая
КОНСУЛЬТАЦИЯ НАШЕГО ЭКСПЕРТА
КОМПАНИИ БАЗА
Эксперт проекта
Вы можете позвонить или написать мне в whatsapp:
или нажмите на кнопку, чтобы записаться на просмотр, и в ближайшее время я свяжусь с вами
ОПИСАНИЕ ОБЪЕКТА
⭐Предлагаем в продажу Торговую площадь с сетевым арендатором “Пятерочка”.

✅Основные характеристики:
• Площадь 584.7 м²
• Высота потолков: 4 м
• Мощность 117 кВт
• Планировка: открытая


⭐Стоимость, условия сделки:
• Стоимость - 270 000 000рублей
• Арендная ставка -2 044 000 рублей в месяц 
• Арендатор - Пятерочка
• Договор Аренды  от 30.09.2024 на 10 лет;
• 6 % от РТО, но не менее 2 044 000 руб ;
• Индексация 5%
• Ввод в эксплуатацию: март 2025

​​​​​​​
✅Описание:
• Высокий пешеходный и автомобильный трафик;
• ЖК бизнес-класса Парксайд на 3500 квартир (1+2 очередь)
• Единственное помещение под супермаркет во всем ЖК;
• Вывеска, места под рекламу;
• Помещение с тремя отдельными входам, выходят  на обе стороны дома! 
• Большие витрины! ;
• Квартиры сдаются с чистовой отделкой.

✅ Подойдет под любой вид деятельности;




☎ Звоните, организуем просмотр в удобное Вам время.

⭐ Мы – АГЕНТСТВО НЕДВИЖИМОСТИ СЕВЕРО-ЗАПАДА – лидирующий эксперт рынка недвижимости Санкт-Петербурга и Ленинградской области.
Наши агенты закрывают более 300 сделок в год.
Мы строим долгосрочные деловые отношения на основе принципов честности и качественного сервиса с нашими клиентами.
⭐ Работая с нами, вы получите:
✅ Высокое качество сопровождения сделки от начала и до конца;
✅ Широкий спектр сопутствующих услуг;
✅ Оптимизацию ваших расходов при заключении сделки;
✅ Экономию Ваших нервов и времени при переговорах;
✅ Доступ к уникальной базе объектов, многие из которых отсутствуют в открытой рекламе;
✅ Помогаем оформлять ипотеку!

⭐Заходите в наш профиль, чтобы ознакомиться с нашими актуальными предложениями!
Если не нашли в нашем профиле то, что Вам подходит – позвоните ☎, и мы обязательно подберем нужный объект по самым выгодным условиям на рынке коммерческой недвижимости!

⭐ Добавьте объявление в Избранное, чтобы не потерять!

С Уважением, Лунев Михаил.
Недвижимость Северо-Запада.
показать все описание
Заинтересовал объект?
Оставьте свой номер - наш эксперт свяжется с Вами, ответит на все вопросы и запишет на просмотр
РАСПОЛОЖЕНИЕ ОБЪЕКТА НА КАРТЕ
Заинтересовал объект?
Оставьте свой номер - наш эксперт свяжется с Вами, ответит на все вопросы и запишет на просмотр
РАСПОЛОЖЕНИЕ ОБЪЕКТА НА КАРТЕ
Другие объекты компании
Продажа
Архив
0
24.10.2024
location_white Ленинградская обл, Ульяновка гп, 7-й Речной проезд, 23б
Площадь
145.00 м²
Цена за м²
124 137 ₽
Этажей в здании
1
Этаж
1
Аренда
32
14.07.2025
location_white Санкт-Петербург г, Чапаева ул, 5 А
Площадь
199.60 м²
Цена за м²
2 500 ₽
Этажей в здании
6
Этаж
6
Продажа
37
23.09.2024
location_white Санкт-Петербург г, Вавиловых ул, 10к1 А
Площадь
278.00 м²
Цена за м²
203 237 ₽
Этажей в здании
24
Этаж
1
Аренда
66
19.09.2024
location_white Санкт-Петербург г, Петроградская наб, 36 А
Площадь
1095.00 м²
Цена за м²
1 849 ₽
Этажей в здании
8
Этаж
5