Продажа помещение с Магнит косметик

ПСН
Дата обновления - 05.05.2026
Итоговая цена 46 990 000 ₽ Итоговая цена
Стоимость за 1 м² 196 200 ₽
Стоимость за 1 м²
Площадь помещения
240 м²
ПСН
Дата обновления - 05.05.2026

Продажа помещение с Магнит косметик

ХАРАКТЕРИСТИКИ ПОМЕЩЕНИЯ
Тип сделки
Продажа
Тип помещения
ПСН
Площадь помещения
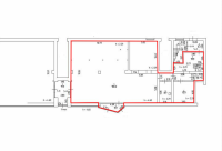
240 м²
Этаж
1
Высота потолков
4.60 м
Отделка
Чистовая стандарт
ХАРАКТЕРИСТИКИ ЗДАНИЯ
Этажность
1
Парковка
Открытая
КОНСУЛЬТАЦИЯ НАШЕГО ЭКСПЕРТА
Михаил Лунев
Эксперт проекта
Вы можете позвонить или написать мне в whatsapp:
или нажмите на кнопку, чтобы записаться на просмотр, и в ближайшее время я свяжусь с вами
ОПИСАНИЕ ОБЪЕКТА
⭐Предлагаем в продажу помещение с арендатором Магнит Косметик в Невском р-не.

✅Основные характеристики:
• Площадь: 239,5 м2;
• Мощность электросети: 25 кВт, возможно увеличение;
• Высота потолков: 4,6 м;
• Этаж: 1;
• Oтдельный вход;
• Великолепный ремонт;
• Все коммуникации: ХВС, ГВС, отопление;

⭐Стоимость, условия сделки:
• Цена продажи: 46 990 000 рублей;
• Арендатор: Магнит- Косметик;
• МАП: 360 000 руб/мес, с индексацией 4%;
​​​​​​​• Окупаемость: 9,5  лет;
• КУ оплачивает арендатор.


✅Описание:
• Высокий пешеходный и автомобильный трафик;
• Вывеска, места под рекламу;
• Помещение в хорошем состоянии;
• Все коммуникации: телефонные линии, водоснабжение, канализация, теплоснабжение;
• Юр. статус: собственность.

✅ Подойдет под любой вид деятельности;




☎ Звоните, организуем просмотр в удобное Вам время.

⭐ Мы – АГЕНТСТВО НЕДВИЖИМОСТИ СЕВЕРО-ЗАПАДА – лидирующий эксперт рынка недвижимости Санкт-Петербурга и Ленинградской области.
Наши агенты закрывают более 300 сделок в год.
Мы строим долгосрочные деловые отношения на основе принципов честности и качественного сервиса с нашими клиентами.
⭐ Работая с нами, вы получите:
✅ Высокое качество сопровождения сделки от начала и до конца;
✅ Широкий спектр сопутствующих услуг;
✅ Оптимизацию ваших расходов при заключении сделки;
✅ Экономию Ваших нервов и времени при переговорах;
✅ Доступ к уникальной базе объектов, многие из которых отсутствуют в открытой рекламе;
✅ Помогаем оформлять ипотеку!

⭐Заходите в наш профиль, чтобы ознакомиться с нашими актуальными предложениями!
Если не нашли в нашем профиле то, что Вам подходит – позвоните ☎, и мы обязательно подберем нужный объект по самым выгодным условиям на рынке коммерческой недвижимости!

⭐ Добавьте объявление в Избранное, чтобы не потерять!

С Уважением, Михаил.
Недвижимость Северо-Запада.
показать все описание
Заинтересовал объект?
Оставьте свой номер - наш эксперт свяжется с Вами, ответит на все вопросы и запишет на просмотр
РАСПОЛОЖЕНИЕ ОБЪЕКТА НА КАРТЕ
Заинтересовал объект?
Оставьте свой номер - наш эксперт свяжется с Вами, ответит на все вопросы и запишет на просмотр
РАСПОЛОЖЕНИЕ ОБЪЕКТА НА КАРТЕ
Другие объекты компании
Аренда
50
20.01.2026
location_white Ленинградская обл, Бугры п, Шекспира ул, 7
Площадь
120.30 м²
Цена за м²
1 260 ₽
Этажей в здании
15
Этаж
1
Аренда
19
15.09.2025
location_white Санкт-Петербург г, Лахтинский пр-кт, 38
Площадь
2388.00 м²
Цена за м²
2 000 ₽
Этажей в здании
4
Этаж
1
Аренда
Архив
32
12.12.2022
location_white Санкт-Петербург г, Школьная ул, 89 А
Площадь
218.00 м²
Цена за м²
1 000 ₽
Этажей в здании
4
Этаж
1
Аренда
30
23.12.2024
location_white Санкт-Петербург г, Дыбенко ул, 24к1 Ю
Площадь
49.00 м²
Цена за м²
4 285 ₽
Этажей в здании
9
Этаж
1