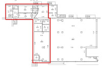
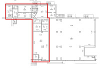
Продажа помещения 167кв.м.

ПСН
Дата обновления - 26.01.2026
Итоговая цена 65 000 000 ₽ Итоговая цена
Стоимость за 1 м² 389 221 ₽
Стоимость за 1 м²
ПСН
Дата обновления - 26.01.2026

Продажа помещения 167кв.м.

ХАРАКТЕРИСТИКИ ПОМЕЩЕНИЯ
Тип сделки
Продажа
Тип помещения
ПСН
Площадь помещения
167 м²
Этаж
1
Высота потолков
3.00 м
Отделка
Чистовая стандарт
ХАРАКТЕРИСТИКИ ЗДАНИЯ
Этажность
2
Парковка
Открытая
КОНСУЛЬТАЦИЯ НАШЕГО ЭКСПЕРТА
КОМПАНИИ БАЗА
Эксперт проекта
Вы можете позвонить или написать мне в whatsapp:
или нажмите на кнопку, чтобы записаться на просмотр, и в ближайшее время я свяжусь с вами
ОПИСАНИЕ ОБЪЕКТА
⭐Предлагаем в продажу помещение у метро Купчино

✅Основные характеристики:
• Площадь: 167 м2;
• Этаж: 1;
• В 5 минутах от метро Купчино;


⭐Стоимость, условия сделки:
• Стоимость помещения - 65 000 000 рублей;
• Есть потенциальный арендатор за 400 000 рублей в месяц;
• Ранее в помещении находился банк;



✅Описание:
• Высокий пешеходный и автомобильный трафик;
• Отдельный вход;
• Витринные окна;
• Вывеска, места под рекламу;
• Помещение в хорошем состоянии;
• Все коммуникации: телефонные линии, водоснабжение, канализация, теплоснабжение;
• Юр. статус: собственность.

✅ Подойдет под любой вид деятельности;




☎ Звоните, организуем просмотр в удобное Вам время.

⭐ Мы – АГЕНТСТВО НЕДВИЖИМОСТИ СЕВЕРО-ЗАПАДА – лидирующий эксперт рынка недвижимости Санкт-Петербурга и Ленинградской области.
Наши агенты закрывают более 300 сделок в год.
Мы строим долгосрочные деловые отношения на основе принципов честности и качественного сервиса с нашими клиентами.
⭐ Работая с нами, вы получите:
✅ Высокое качество сопровождения сделки от начала и до конца;
✅ Широкий спектр сопутствующих услуг;
✅ Оптимизацию ваших расходов при заключении сделки;
✅ Экономию Ваших нервов и времени при переговорах;
✅ Доступ к уникальной базе объектов, многие из которых отсутствуют в открытой рекламе;
✅ Помогаем оформлять ипотеку!

⭐Заходите в наш профиль, чтобы ознакомиться с нашими актуальными предложениями!
Если не нашли в нашем профиле то, что Вам подходит – позвоните ☎, и мы обязательно подберем нужный объект по самым выгодным условиям на рынке коммерческой недвижимости!

⭐ Добавьте объявление в Избранное, чтобы не потерять!

С Уважением, Сигов Даниил.
Недвижимость Северо-Запада.
показать все описание
Заинтересовал объект?
Оставьте свой номер - наш эксперт свяжется с Вами, ответит на все вопросы и запишет на просмотр
РАСПОЛОЖЕНИЕ ОБЪЕКТА НА КАРТЕ
Заинтересовал объект?
Оставьте свой номер - наш эксперт свяжется с Вами, ответит на все вопросы и запишет на просмотр
РАСПОЛОЖЕНИЕ ОБЪЕКТА НА КАРТЕ
Другие объекты компании
Продажа
16
29.02.2024
location_white Ленинградская обл, Кальтино д, -, 7
Площадь
662.00 м²
Цена за м²
52 870 ₽
Этажей в здании
1
Этаж
1
Продажа
51
11.02.2026
location_white Санкт-Петербург г, Петергофское ш, 17к1
Площадь
127.00 м²
Цена за м²
283 464 ₽
Этажей в здании
25
Этаж
1
Продажа
115
23.01.2026
location_white Санкт-Петербург г, Будапештская ул, 49
Площадь
184.20 м²
Цена за м²
401 737 ₽
Этажей в здании
3
Этаж
1
Продажа
65
17.03.2026
location_white Ленинградская обл, Лодейное Поле г, Ленина пр-кт, 44а
Площадь
55.00 м²
Цена за м²
125 454 ₽
Этажей в здании
1
Этаж
1