Продажа помещения с арендатором, 174.2м

ПСН
Дата обновления - 24.11.2025
Итоговая цена 44 800 000 ₽ Итоговая цена
Стоимость за 1 м² 260 162 ₽
Стоимость за 1 м²
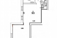
Площадь помещения
172 м²
ПСН
Дата обновления - 24.11.2025

Продажа помещения с арендатором, 174.2м

ХАРАКТЕРИСТИКИ ПОМЕЩЕНИЯ
Тип сделки
Продажа
Тип помещения
ПСН
Площадь помещения
172 м²
Этаж
1
Высота потолков
2.90 м
Отделка
Чистовая стандарт
ХАРАКТЕРИСТИКИ ЗДАНИЯ
Этажность
10
Парковка
Наземная
КОНСУЛЬТАЦИЯ НАШЕГО ЭКСПЕРТА
Дарья Лунёва
Эксперт проекта
Вы можете позвонить или написать мне в whatsapp:
или нажмите на кнопку, чтобы записаться на просмотр, и в ближайшее время я свяжусь с вами
ОПИСАНИЕ ОБЪЕКТА
⭐Предлагаем в продажу помещение с сетевыми арендаторами, 174.2м

✅Основные характеристики:
• Площадь: 174.2 м2;
• Мощность электросети: 35кВт;
• Высота потолков: 2.9м;
• Этаж: 1;
• В 25 минутах от метро Ломоносовская;

⭐Стоимость, условия сделки: 44 800 000р
• Арендная ставка - 349 000 руб./мес.+ КУ;
• Срок договора - длительный (от 11 мес.);

✅Описание:
• Высокий пешеходный и автомобильный трафик;
• Вытяжка;
• Отдельный вход;
• Витринные окна;
• Вывеска, места под рекламу;
• Помещение в хорошем состоянии;
• Все коммуникации: водоснабжение, канализация, теплоснабжение;
• Юр. статус: собственность.

✅ Подойдет под любой вид деятельности;




☎ Звоните, организуем просмотр в удобное Вам время.

⭐ Мы – АГЕНТСТВО НЕДВИЖИМОСТИ СЕВЕРО-ЗАПАДА – лидирующий эксперт рынка недвижимости Санкт-Петербурга и Ленинградской области.
Наши агенты закрывают более 300 сделок в год.
Мы строим долгосрочные деловые отношения на основе принципов честности и качественного сервиса с нашими клиентами.
⭐ Работая с нами, вы получите:
✅ Высокое качество сопровождения сделки от начала и до конца;
✅ Широкий спектр сопутствующих услуг;
✅ Оптимизацию ваших расходов при заключении сделки;
✅ Экономию Ваших нервов и времени при переговорах;
✅ Доступ к уникальной базе объектов, многие из которых отсутствуют в открытой рекламе;
✅ Помогаем оформлять ипотеку!

⭐Заходите в наш профиль, чтобы ознакомиться с нашими актуальными предложениями!
Если не нашли в нашем профиле то, что Вам подходит – позвоните ☎, и мы обязательно подберем нужный объект по самым выгодным условиям на рынке коммерческой недвижимости!

⭐ Добавьте объявление в Избранное, чтобы не потерять!

С Уважением, Александр.
Недвижимость Северо-Запада.
показать все описание
Заинтересовал объект?
Оставьте свой номер - наш эксперт свяжется с Вами, ответит на все вопросы и запишет на просмотр
РАСПОЛОЖЕНИЕ ОБЪЕКТА НА КАРТЕ
Заинтересовал объект?
Оставьте свой номер - наш эксперт свяжется с Вами, ответит на все вопросы и запишет на просмотр
РАСПОЛОЖЕНИЕ ОБЪЕКТА НА КАРТЕ
Другие объекты компании
Аренда
153
01.10.2025
location_white Санкт-Петербург г, Обуховской Обороны пр-кт, 36
Площадь
74.50 м²
Цена за м²
4 201 ₽
Этажей в здании
1
Этаж
1
Продажа
280
17.02.2025
location_white Санкт-Петербург г, Лидии Зверевой ул, 5к1стр1
Площадь
1543.00 м²
Цена за м²
88 788 ₽
Этажей в здании
2
Этаж
1
Продажа
190
30.07.2025
location_white Санкт-Петербург г, Энергетиков пр-кт, 2к1 стр 1
Площадь
89.00 м²
Цена за м²
247 191 ₽
Этажей в здании
15
Этаж
1
Аренда
91
15.09.2023
location_white Ленинградская обл, Янино-1 гп, Ветряных мельниц (Янила Кантри мкр) ул, 3
Площадь
47.00 м²
Цена за м²
4 000 ₽
Этажей в здании
1
Этаж
1