Продажа помещения с витринами на трафике

ПСН
Дата обновления - 24.04.2026
Итоговая цена 35 000 000 ₽ Итоговая цена
Стоимость за 1 м² 281 803 ₽
Стоимость за 1 м²
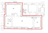
Площадь помещения
124 м²
ПСН
Дата обновления - 24.04.2026

Продажа помещения с витринами на трафике

ХАРАКТЕРИСТИКИ ПОМЕЩЕНИЯ
Тип сделки
Продажа
Тип помещения
ПСН
Площадь помещения
124 м²
Этаж
1
Высота потолков
3.00 м
Отделка
Чистовая стандарт
ХАРАКТЕРИСТИКИ ЗДАНИЯ
Этажность
1
Парковка
Открытая
КОНСУЛЬТАЦИЯ НАШЕГО ЭКСПЕРТА
КОМПАНИИ БАЗА
Эксперт проекта
Вы можете позвонить или написать мне в whatsapp:
или нажмите на кнопку, чтобы записаться на просмотр, и в ближайшее время я свяжусь с вами
ОПИСАНИЕ ОБЪЕКТА
⭐Предлагаем в продажу помещение с большими витринами в активно проходном и проездном месте.

✅Основные характеристики:
• Площадь: 124,2 м2;
• Максимально полезная торговая площадь;
• Удобный паркинг для автомобилей;
• Витринные окна;
• Этаж: 1;
• В 10 минутах от метро Кировский завод;

⭐Стоимость, условия сделки:
• Цена продажи: 35 000 000 рублей;
• Арендатор: Цветовик;
• МАП: 280 000 руб/мес;
​​​​​​​• Окупаемость: 10,4 лет без учета индексации.


✅Описание:
• Высокий пешеходный и автомобильный трафик;
• Вывеска, места под рекламу;
• Помещение в хорошем состоянии;
• Все коммуникации: телефонные линии, водоснабжение, канализация, теплоснабжение;
• Юр. статус: собственность.

✅ Подойдет под любой вид деятельности;




☎ Звоните, организуем просмотр в удобное Вам время.

⭐ Мы – АГЕНТСТВО НЕДВИЖИМОСТИ СЕВЕРО-ЗАПАДА – лидирующий эксперт рынка недвижимости Санкт-Петербурга и Ленинградской области.
Наши агенты закрывают более 300 сделок в год.
Мы строим долгосрочные деловые отношения на основе принципов честности и качественного сервиса с нашими клиентами.
⭐ Работая с нами, вы получите:
✅ Высокое качество сопровождения сделки от начала и до конца;
✅ Широкий спектр сопутствующих услуг;
✅ Оптимизацию ваших расходов при заключении сделки;
✅ Экономию Ваших нервов и времени при переговорах;
✅ Доступ к уникальной базе объектов, многие из которых отсутствуют в открытой рекламе;
✅ Помогаем оформлять ипотеку!

⭐Заходите в наш профиль, чтобы ознакомиться с нашими актуальными предложениями!
Если не нашли в нашем профиле то, что Вам подходит – позвоните ☎, и мы обязательно подберем нужный объект по самым выгодным условиям на рынке коммерческой недвижимости!

⭐ Добавьте объявление в Избранное, чтобы не потерять!

С Уважением, Дмитрий Ефремов.
Недвижимость Северо-Запада.
показать все описание
Заинтересовал объект?
Оставьте свой номер - наш эксперт свяжется с Вами, ответит на все вопросы и запишет на просмотр
РАСПОЛОЖЕНИЕ ОБЪЕКТА НА КАРТЕ
Заинтересовал объект?
Оставьте свой номер - наш эксперт свяжется с Вами, ответит на все вопросы и запишет на просмотр
РАСПОЛОЖЕНИЕ ОБЪЕКТА НА КАРТЕ
Другие объекты компании
Аренда
30
07.05.2026
location_white Санкт-Петербург г, Большой Сампсониевский пр-кт, 38-40
Площадь
106.00 м²
Цена за м²
1 698 ₽
Этажей в здании
1
Этаж
1
Продажа
Архив
0
28.05.2025
location_white Санкт-Петербург г, Революции ш, 69
Площадь
270.50 м²
Цена за м²
149 685 ₽
Этажей в здании
1
Этаж
1
Продажа
Архив
2
04.03.2025
location_white Санкт-Петербург г, Фурштатская ул, 1/14
Площадь
1238.70 м²
Цена за м²
199 000 ₽
Этажей в здании
6
Этаж
4
Продажа
77
23.01.2026
location_white Санкт-Петербург г, Народная ул, 39 Б
Площадь
1140.00 м²
Цена за м²
313 157 ₽
Этажей в здании
5
Этаж
1