Продажа помещения в центре города, 73.6м

ПСН
Дата обновления - 15.02.2024
Итоговая цена 48 000 000 ₽ Итоговая цена
Стоимость за 1 м² 652 173 ₽
Стоимость за 1 м²
ПСН
Дата обновления - 15.02.2024

Продажа помещения в центре города, 73.6м

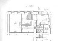
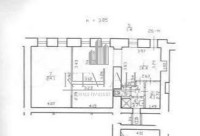
ХАРАКТЕРИСТИКИ ПОМЕЩЕНИЯ
Тип сделки
Продажа
Тип помещения
ПСН
Площадь помещения
74 м²
Этаж
1
Высота потолков
3.00 м
Отделка
Чистовая стандарт
ХАРАКТЕРИСТИКИ ЗДАНИЯ
Этажность
5
Парковка
Наземная
КОНСУЛЬТАЦИЯ НАШЕГО ЭКСПЕРТА
Александр Николаев
Эксперт проекта
Вы можете позвонить или написать мне в whatsapp:
или нажмите на кнопку, чтобы записаться на просмотр, и в ближайшее время я свяжусь с вами
ОПИСАНИЕ ОБЪЕКТА
⭐Предлагаем в продажу помещение свободного назначения, 73.6м, на трафике

✅Основные характеристики:

• Площадь: 73.6м2;
• Мощность электросети: 10кВт;
• Высота потолков: 3м;
• Этаж: 1;
• В 6 минутах от метро Садовая;

​​​​​​​
⭐Стоимость, условия сделки: 48 000 000 руб



✅Описание:
• Высокий пешеходный и автомобильный трафик;
• Отдельный вход с улицы и со двора;
• Витринные окна;
• Вывеска, места под рекламу;
• Помещение в хорошем состоянии;
• Все коммуникации: телефонные линии, водоснабжение, канализация, теплоснабжение;
• Юр. статус: собственность.


✅ Подойдет под любой вид деятельности;



☎ Звоните, организуем просмотр в удобное Вам время.

⭐ Мы – АГЕНТСТВО НЕДВИЖИМОСТИ СЕВЕРО-ЗАПАДА – лидирующий эксперт рынка недвижимости Санкт-Петербурга и Ленинградской области.
Наши агенты закрывают более 300 сделок в год.
Мы строим долгосрочные деловые отношения на основе принципов честности и качественного сервиса с нашими клиентами.
⭐ Работая с нами, вы получите:
✅ Высокое качество сопровождения сделки от начала и до конца;
✅ Широкий спектр сопутствующих услуг;
✅ Оптимизацию ваших расходов при заключении сделки;
✅ Экономию Ваших нервов и времени при переговорах;
✅ Доступ к уникальной базе объектов, многие из которых отсутствуют в открытой рекламе;

⭐Заходите в наш профиль, чтобы ознакомиться с нашими актуальными предложениями!
Если не нашли в нашем профиле то, что Вам подходит – позвоните ☎, и мы обязательно подберем нужный объект по самым выгодным условиям на рынке коммерческой недвижимости!

⭐ Добавьте объявление в Избранное, чтобы не потерять!

С Уважением, Николаев Александр.
Недвижимость Северо-Запада.
показать все описание
Заинтересовал объект?
Оставьте свой номер - наш эксперт свяжется с Вами, ответит на все вопросы и запишет на просмотр
РАСПОЛОЖЕНИЕ ОБЪЕКТА НА КАРТЕ
Заинтересовал объект?
Оставьте свой номер - наш эксперт свяжется с Вами, ответит на все вопросы и запишет на просмотр
РАСПОЛОЖЕНИЕ ОБЪЕКТА НА КАРТЕ
Другие объекты компании
Продажа
33
15.11.2023
location_white Ленинградская обл, Сосновый Бор г, Красных Фортов ул, 49
Площадь
1384.00 м²
Цена за м²
90 317 ₽
Этажей в здании
2
Этаж
1
Аренда
11
23.09.2025
location_white Санкт-Петербург г, Оптиков ул, 45к1
Площадь
169.00 м²
Цена за м²
1 479 ₽
Этажей в здании
20
Этаж
1
Аренда
147
07.08.2025
location_white Санкт-Петербург г, 11-я Красноармейская ул, 18 20 А
Площадь
1300.00 м²
Цена за м²
2 261 ₽
Этажей в здании
5
Этаж
3
Продажа
178
15.04.2025
location_white Санкт-Петербург г, Парнас м, -
Площадь
124.00 м²
Цена за м²
420 000 ₽
Этажей в здании
1
Этаж
1