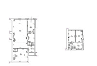
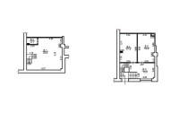
Продажа с арендаторами 163м2

ПСН
Дата обновления - 03.04.2025
Итоговая цена 33 000 000 ₽ Итоговая цена
Стоимость за 1 м² 202 453 ₽
Стоимость за 1 м²
ПСН
Дата обновления - 03.04.2025

Продажа с арендаторами 163м2

ХАРАКТЕРИСТИКИ ПОМЕЩЕНИЯ
Тип сделки
Продажа
Тип помещения
ПСН
Площадь помещения
163 м²
Этаж
1
Высота потолков
2.80 м
Отделка
Чистовая стандарт
ХАРАКТЕРИСТИКИ ЗДАНИЯ
Этажность
10
Парковка
Открытая
КОНСУЛЬТАЦИЯ НАШЕГО ЭКСПЕРТА
КОМПАНИИ БАЗА
Эксперт проекта
Вы можете позвонить или написать мне в whatsapp:
или нажмите на кнопку, чтобы записаться на просмотр, и в ближайшее время я свяжусь с вами
ОПИСАНИЕ ОБЪЕКТА
⭐Предлагаем в продажу помещение с арендаторами на 1 этаже  Wildberries и на 2 этаже школа электронной музыки.(возможна покупка вместе с помещением, расположенным в соседней двери 27.87м2 )
✅Основные характеристики:
• Площадь: 163 м2;
• Мощность электросети:20 кВт;
• Высота потолков:2,8м;
• 2 этажа;



⭐Стоимость, условия сделки:
• Арендная ставка - 247 000( 147 000 + 100 000 )руб./мес.;
• Стоимость помещения - 33 000 000 рублей
 40 000 000 рублей(вместе с помещением рядом 27.87м2 );

• Срок договора - длительный (от 11 мес.);


✅Описание:
• Высокий пешеходный и автомобильный трафик;
• Отдельный вход;
• Большие окна;
• Вывеска, места под рекламу;
• Помещение в хорошем состоянии;
• Все коммуникации: телефонные линии, водоснабжение, канализация, теплоснабжение;
• Юр. статус: собственность.

✅ Подойдет под любой вид деятельности;




☎ Звоните, организуем просмотр в удобное Вам время.

⭐ Мы – АГЕНТСТВО НЕДВИЖИМОСТИ СЕВЕРО-ЗАПАДА – лидирующий эксперт рынка недвижимости Санкт-Петербурга и Ленинградской области.
Наши агенты закрывают более 300 сделок в год.
Мы строим долгосрочные деловые отношения на основе принципов честности и качественного сервиса с нашими клиентами.
⭐ Работая с нами, вы получите:
✅ Высокое качество сопровождения сделки от начала и до конца;
✅ Широкий спектр сопутствующих услуг;
✅ Оптимизацию ваших расходов при заключении сделки;
✅ Экономию Ваших нервов и времени при переговорах;
✅ Доступ к уникальной базе объектов, многие из которых отсутствуют в открытой рекламе;
✅ Помогаем оформлять ипотеку!

⭐Заходите в наш профиль, чтобы ознакомиться с нашими актуальными предложениями!
Если не нашли в нашем профиле то, что Вам подходит – позвоните ☎, и мы обязательно подберем нужный объект по самым выгодным условиям на рынке коммерческой недвижимости!

⭐ Добавьте объявление в Избранное, чтобы не потерять!

С Уважением, Михаил Лунёв.
Недвижимость Северо-Запада.
показать все описание
Заинтересовал объект?
Оставьте свой номер - наш эксперт свяжется с Вами, ответит на все вопросы и запишет на просмотр
РАСПОЛОЖЕНИЕ ОБЪЕКТА НА КАРТЕ
Заинтересовал объект?
Оставьте свой номер - наш эксперт свяжется с Вами, ответит на все вопросы и запишет на просмотр
РАСПОЛОЖЕНИЕ ОБЪЕКТА НА КАРТЕ
Другие объекты компании
Продажа
0
29.07.2024
location_white Ленинградская обл, Узигонты д, Медовая ул, 7
Площадь
600.00 м²
Цена за м²
131 666 ₽
Этажей в здании
1
Этаж
1
Аренда
0
22.03.2024
location_white Санкт-Петербург г, Маршака пр-кт, 3стр1
Площадь
400.00 м²
Цена за м²
2 500 ₽
Этажей в здании
1
Этаж
1
Продажа
161
27.03.2025
location_white Санкт-Петербург г, Плесецкая ул, 12
Площадь
710.00 м²
Цена за м²
114 084 ₽
Этажей в здании
5
Этаж
1
Аренда
Архив
0
12.03.2024
location_white Санкт-Петербург г, Индустриальный пр-кт, 27 А
Площадь
146.00 м²
Цена за м²
2 465 ₽
Этажей в здании
12
Этаж
1