продажа здания

ПСН
Дата обновления - 27.10.2025
Итоговая цена 680 000 048 ₽ Итоговая цена
Стоимость за 1 м² 108 819 ₽
Стоимость за 1 м²
ПСН
Дата обновления - 27.10.2025

продажа здания

ХАРАКТЕРИСТИКИ ПОМЕЩЕНИЯ
Тип сделки
Продажа
Тип помещения
ПСН
Площадь помещения
6 249 м²
Этаж
1
Высота потолков
4.00 м
Отделка
Черновая
ХАРАКТЕРИСТИКИ ЗДАНИЯ
Этажность
3
Парковка
Открытая
КОНСУЛЬТАЦИЯ НАШЕГО ЭКСПЕРТА
Даниил Сигов
Эксперт проекта
Вы можете позвонить или написать мне в whatsapp:
или нажмите на кнопку, чтобы записаться на просмотр, и в ближайшее время я свяжусь с вами
ОПИСАНИЕ ОБЪЕКТА
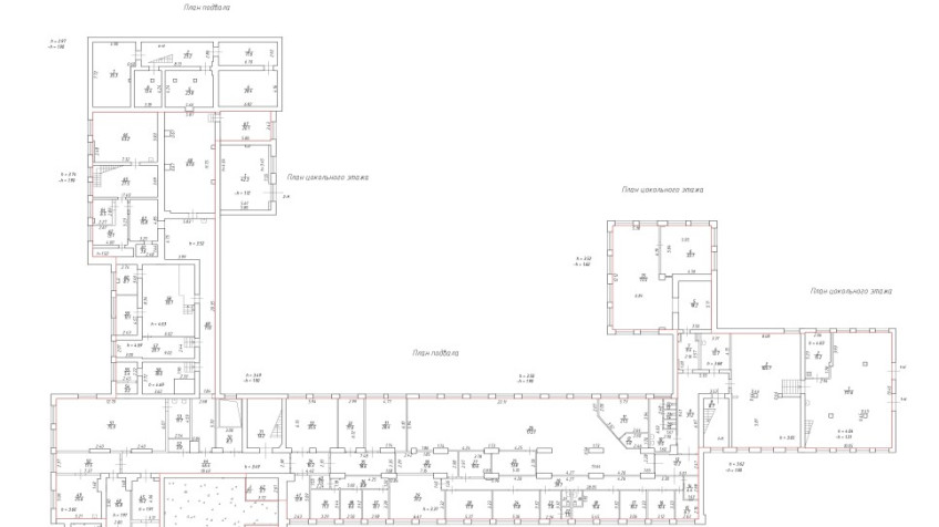
⭐Продажа здания с земельным участком, под апарт отель.
Конфигурация здания с множеством изолированных помещений идеально подходит для редевелопмента в апарт-отель. Предварительный расчет позволяет разместить до 80 номеров различной категории общей площадью более 3 400 м/кв. + 1100 м/кв. торговой площади на цокольном этаже.

✅ИНФОРМАЦИЯ ПО ЗДАНИЮ:
• Площадь здания: 6 248,9 м/кв.
• Этажность: цоколь + 3 этажа
• Кадастровый номер здания: 78:36:0005365:1008
• Техническое состояние здания: в соответствии с требованиями «Правил обследования и  мониторинга технического состояния зданий и сооружений» ГОСТ Р 31937-2011 оценивается, как работоспособное.
• Требуется капитальный ремонт здания. По результатам расчета физический износ здания составляет 59 %.

✅ИНФОРМАЦИЯ ПО ЗЕМЕЛЬНОМУ УЧАСТКУ
• ВРИ: Гостиничное обслуживание (4.7), Общежития (3.2.4)
• Площадь участка: 8 560 м/кв.
• Кадастровый номер участка: 78:36:0005365:1719
• Территориальная зона: Земельный участок расположен в территориальной зоне ТД1-2, общественно-деловая зона объектов многофункциональной общественно-деловой застройки и жилых домов, расположенных на территории периферийных и пригородных районов
Санкт-Петербурга, с включением объектов инженерной инфраструктуры в подзоне ТД1-2_2 и частично в границах объединенной зоны охраны объектов культурного наследия


⭐Стоимость, условия сделки:
• Стоимость объекта: 680 000 000 руб.
(возможно кредитование проекта на индивидуальных условиях).

✅ КГИОП:
• Здание 2 находится в граница единой зоны регулирования застройки и хозяйственной деятельности ЗР З (10)03, расположенной за пределами исторически сложившихся центральных районов Санкт-Петербурга;
• Здание не является объектом культурного наследия (памятником);
• Здание признано «объектом охраняемой среды» и относятся к «историческим»;
• Проект реконструкции требует получения заключения КГИОП;
• Процедура согласования является стандартной для объектов подобного типа в Санкт-Петербурге.

✅ Подойдет под любой вид деятельности;



показать все описание
Заинтересовал объект?
Оставьте свой номер - наш эксперт свяжется с Вами, ответит на все вопросы и запишет на просмотр
РАСПОЛОЖЕНИЕ ОБЪЕКТА НА КАРТЕ
Заинтересовал объект?
Оставьте свой номер - наш эксперт свяжется с Вами, ответит на все вопросы и запишет на просмотр
РАСПОЛОЖЕНИЕ ОБЪЕКТА НА КАРТЕ
Другие объекты компании
Продажа
117
03.02.2026
location_white Санкт-Петербург г, Большеохтинский пр-кт, 15к1 А
Площадь
189.30 м²
Цена за м²
190 174 ₽
Этажей в здании
5
Этаж
1
Аренда
45
10.10.2024
location_white Ленинградская обл, автодорога Кола 21 км, -, -
Площадь
1797.00 м²
Цена за м²
833 ₽
Этажей в здании
1
Этаж
1
Продажа
239
10.09.2025
location_white Ленинградская обл, Первомайское п, Загородная ул, -
Площадь
10049.00 м²
Цена за м²
2 487 ₽
Этаж
1
Продажа
16
15.04.2026
location_white Ленинградская обл, Производственная зона-1 тер, Политехническая ул, 13
Площадь
1132.00 м²
Цена за м²
42 402 ₽
Этажей в здании
1
Этаж
1