Продажа здания возле Лиговского пр-кта

ОСЗ
Дата обновления - 30.09.2025
Итоговая цена 800 000 000 ₽ Итоговая цена
Стоимость за 1 м² 233 986 ₽
Стоимость за 1 м²
Площадь помещения
3 419 м²
ОСЗ
Дата обновления - 30.09.2025

Продажа здания возле Лиговского пр-кта

ХАРАКТЕРИСТИКИ ПОМЕЩЕНИЯ
Тип сделки
Продажа
Тип помещения
ОСЗ
Площадь помещения
3 419 м²
Этаж
1
Высота потолков
4.00 м
Отделка
Чистовая стандарт
ХАРАКТЕРИСТИКИ ЗДАНИЯ
Этажность
6
Парковка
Открытая
КОНСУЛЬТАЦИЯ НАШЕГО ЭКСПЕРТА
Тлевалдэ Шуканов
Эксперт проекта
Вы можете позвонить или написать мне в whatsapp:
или нажмите на кнопку, чтобы записаться на просмотр, и в ближайшее время я свяжусь с вами
ОПИСАНИЕ ОБЪЕКТА
⭐Предлагаем в продажу здание вблизи Лиговского проспекта

✅Основные характеристики:
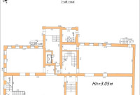
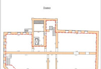
• Площадь: 3419 м2;
• 3 входа на первый этаж
• ⁠Новая газовая котельная сдана в эксплуатацию
• ⁠Пять этажей. Цокольный этаж сдан под Яндекс лавку по ставке 1700р за 1м2(ДА на 5 лет)
• ⁠Полностью восстановлен и реконструированный фасад
• ⁠Новые перекрытия
• ⁠Новый лифт, перила, кровля, новые окна
• Мощность электросети: 150 кВт, все готово для 230 кВт;
• Высота потолков: 5м

⭐Стоимость, условия сделки:
• Цена продажи: 800 000 000 рублей

✅Описание:
• Высокий пешеходный и автомобильный трафик;
• Помещение в хорошем состоянии;
• Все городские коммуникации новые 
• Юр. статус: собственность.

✅ Подойдет под любой вид деятельности;




☎ Звоните, организуем просмотр в удобное Вам время.

⭐ Мы – АГЕНТСТВО НЕДВИЖИМОСТИ СЕВЕРО-ЗАПАДА – лидирующий эксперт рынка недвижимости Санкт-Петербурга и Ленинградской области.
Наши агенты закрывают более 300 сделок в год.
Мы строим долгосрочные деловые отношения на основе принципов честности и качественного сервиса с нашими клиентами.
⭐ Работая с нами, вы получите:
✅ Высокое качество сопровождения сделки от начала и до конца;
✅ Широкий спектр сопутствующих услуг;
✅ Оптимизацию ваших расходов при заключении сделки;
✅ Экономию Ваших нервов и времени при переговорах;
✅ Доступ к уникальной базе объектов, многие из которых отсутствуют в открытой рекламе;
✅ Помогаем оформлять ипотеку!

⭐Заходите в наш профиль, чтобы ознакомиться с нашими актуальными предложениями!
Если не нашли в нашем профиле то, что Вам подходит – позвоните ☎, и мы обязательно подберем нужный объект по самым выгодным условиям на рынке коммерческой недвижимости!

⭐ Добавьте объявление в Избранное, чтобы не потерять!

С Уважением, Тлевалдэ.
Недвижимость Северо-Запада.
показать все описание
Заинтересовал объект?
Оставьте свой номер - наш эксперт свяжется с Вами, ответит на все вопросы и запишет на просмотр
РАСПОЛОЖЕНИЕ ОБЪЕКТА НА КАРТЕ
Заинтересовал объект?
Оставьте свой номер - наш эксперт свяжется с Вами, ответит на все вопросы и запишет на просмотр
РАСПОЛОЖЕНИЕ ОБЪЕКТА НА КАРТЕ
Другие объекты компании
Продажа
386
11.11.2024
location_white Санкт-Петербург г, Трамвайный пр-кт, 32 В
Площадь
11300.00 м²
Цена за м²
51 331 ₽
Этажей в здании
1
Этаж
1
Аренда
59
01.08.2025
location_white Санкт-Петербург г, Художников пр-кт, 22к1
Площадь
400.00 м²
Цена за м²
2 500 ₽
Этажей в здании
2
Этаж
1
Продажа
23
10.09.2025
location_white Санкт-Петербург г, Обводного канала наб, 21 А
Площадь
3660.00 м²
Цена за м²
109 289 ₽
Этажей в здании
2
Этаж
2
Аренда
42
25.08.2025
location_white Ленинградская обл, Аннолово д, Центральная ул, 1
Площадь
1620.00 м²
Цена за м²
455 ₽
Этажей в здании
1
Этаж
1