продажа земельного участка, 39980м

УЧАСТОК ЗЕМЛИ
Дата обновления - 06.04.2025
Итоговая цена 270 000 132 ₽ Итоговая цена
Стоимость за 1 м² 6 753 ₽
Стоимость за 1 м²
Площадь помещения
39 980 м²
УЧАСТОК ЗЕМЛИ
Дата обновления - 06.04.2025

продажа земельного участка, 39980м

ХАРАКТЕРИСТИКИ ПОМЕЩЕНИЯ
Тип сделки
Продажа
Тип помещения
УЧАСТОК ЗЕМЛИ
Площадь помещения
39 980 м²
Этаж
1
Высота потолков
1.00 м
ХАРАКТЕРИСТИКИ ЗДАНИЯ
КОНСУЛЬТАЦИЯ НАШЕГО ЭКСПЕРТА
Даниил Сигов
Эксперт проекта
Вы можете позвонить или написать мне в whatsapp:
или нажмите на кнопку, чтобы записаться на просмотр, и в ближайшее время я свяжусь с вами
ОПИСАНИЕ ОБЪЕКТА
⭐Предлагаем на Ваше рассмотрение предложение по покупке земельного участка.
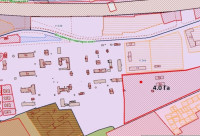
 Участок расположен в непосредственной близости от КАД, есть съезд на участок.Отличная транспортная доступность.
Идеально подходит для размещения логистического/транспортного комплекса.

✅Основные характеристики:
• Площадь земельного участка 39980 кв.м. (4,0га)
• Кадастровый номер - 78:38:0011344:8
• Категория земли – земли населенных пунктов.
• Разрешенное использование - для размещения объектов коммерческой деятельности.

⭐Стоимость, условия сделки:
• Стоимость продажи участка  - 240 000 000 рублей.
​​​​​​​

По Генеральному плану Санкт-Петербурга участок относится к функциональной зоне Д – зона всех видов общественно-деловой застройки с включением объектов жилой застройки и объектов инженерной инфраструктуры, связанных с обслуживанием данной зоны. Согласно правилам землепользования и застройки Санкт-Петербурга: ТД1_2_1 (общественно-деловая подзона объектов многофункциональной общественно-деловой застройки и жилых домов в периферийных и пригородных районах города, расположенных в зоне влияния Кольцевой автомобильной дороги вокруг Санкт-Петербурга и вылетных магистралей с включением объектов инженерной инфраструктуры).





показать все описание
Заинтересовал объект?
Оставьте свой номер - наш эксперт свяжется с Вами, ответит на все вопросы и запишет на просмотр
РАСПОЛОЖЕНИЕ ОБЪЕКТА НА КАРТЕ
Заинтересовал объект?
Оставьте свой номер - наш эксперт свяжется с Вами, ответит на все вопросы и запишет на просмотр
РАСПОЛОЖЕНИЕ ОБЪЕКТА НА КАРТЕ
Другие объекты компании
Аренда
80
23.07.2025
location_white Санкт-Петербург г, Академика Константинова ул, 1к1 стр 1
Площадь
62.20 м²
Цена за м²
1 980 ₽
Этажей в здании
10
Этаж
1
Аренда
82
15.07.2025
location_white Московская обл, Электроугли г, -, 22
Площадь
798.10 м²
Цена за м²
1 300 ₽
Этажей в здании
5
Этаж
1
Аренда
359
11.09.2024
location_white Санкт-Петербург г, Испытателей пр-кт, 37 А
metro Комендантский проспект
metro 3 мин
Площадь
700.00 м²
Цена за м²
800 ₽
Этажей в здании
5
Этаж
2
Аренда
133
16.05.2025
location_white Санкт-Петербург г, Швецова ул, 8 а
Площадь
290.00 м²
Цена за м²
1 724 ₽
Этажей в здании
1
Этаж
1