Псн под паб на 1 линии Невского проспекта 250м2

ПСН
Дата обновления - 12.09.2025
Итоговая цена 1 500 000 ₽ / мес Итоговая цена
Стоимость за 1 м² 6 000 ₽ / мес
Стоимость за 1 м²
metro Маяковская
metro мин
metro Площадь Восстания
metro мин
Площадь помещения
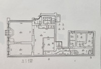
250 м²
ПСН
Дата обновления - 12.09.2025

Псн под паб на 1 линии Невского проспекта 250м2

ХАРАКТЕРИСТИКИ ПОМЕЩЕНИЯ
Тип сделки
Аренда
Тип помещения
ПСН
Площадь помещения
250 м²
Этаж
-1
Высота потолков
2.60 м
Отделка
Чистовая стандарт
Вход в помещение
Центральный
ХАРАКТЕРИСТИКИ ЗДАНИЯ
Этажность
9
Парковка
Наземная
КОНСУЛЬТАЦИЯ НАШЕГО ЭКСПЕРТА
КОМПАНИИ БАЗА
Эксперт проекта
Вы можете позвонить или написать мне в whatsapp:
или нажмите на кнопку, чтобы записаться на просмотр, и в ближайшее время я свяжусь с вами
ОПИСАНИЕ ОБЪЕКТА
⭐Предлагаем в аренду помещение на 1-ой линии Невского проспекта!

✅Основные характеристики:
• Площадь: 250 м2;
• Мощность электросети: 125 кВт;
• Высота потолков: 2,6м ;
• Этаж: цоколь;
• В 3х минутах от метро Маяковская;

⭐Стоимость, условия сделки:
• Арендная ставка -1 500 000 руб./мес.;
• Обеспечительный платеж - 100% (1 500 000 руб.);
• Срок договора - длительный (от 11 мес.);

✅Описание:
• Высокий пешеходный и автомобильный трафик;
• 2 входа;
•Ресторанная локация;
• Разрешенное место под террасу;
• Просторные залы;
• Вывеска, места под рекламу;
• Помещение в хорошем состоянии;
• Все коммуникации: телефонные линии, водоснабжение, канализация, теплоснабжение;
• Юр. статус: собственность.

✅ Подойдет под любой вид деятельности;




☎ Звоните, организуем просмотр в удобное Вам время.

⭐ Мы – АГЕНТСТВО НЕДВИЖИМОСТИ СЕВЕРО-ЗАПАДА – лидирующий эксперт рынка недвижимости Санкт-Петербурга и Ленинградской области.
Наши агенты закрывают более 300 сделок в год.
Мы строим долгосрочные деловые отношения на основе принципов честности и качественного сервиса с нашими клиентами.
⭐ Работая с нами, вы получите:
✅ Высокое качество сопровождения сделки от начала и до конца;
✅ Широкий спектр сопутствующих услуг;
✅ Оптимизацию ваших расходов при заключении сделки;
✅ Экономию Ваших нервов и времени при переговорах;
✅ Доступ к уникальной базе объектов, многие из которых отсутствуют в открытой рекламе;
✅ Помогаем оформлять ипотеку!

⭐Заходите в наш профиль, чтобы ознакомиться с нашими актуальными предложениями!
Если не нашли в нашем профиле то, что Вам подходит – позвоните ☎, и мы обязательно подберем нужный объект по самым выгодным условиям на рынке коммерческой недвижимости!

⭐ Добавьте объявление в Избранное, чтобы не потерять!

С Уважением, Ксения .
Недвижимость Северо-Запада.
показать все описание
Заинтересовал объект?
Оставьте свой номер - наш эксперт свяжется с Вами, ответит на все вопросы и запишет на просмотр
РАСПОЛОЖЕНИЕ ОБЪЕКТА НА КАРТЕ
Заинтересовал объект?
Оставьте свой номер - наш эксперт свяжется с Вами, ответит на все вопросы и запишет на просмотр
РАСПОЛОЖЕНИЕ ОБЪЕКТА НА КАРТЕ
Другие объекты компании
Продажа
38
19.03.2025
location_white Ленинградская обл, Новое Девяткино д, Главная ул, 8
Площадь
112.00 м²
Цена за м²
311 607 ₽
Этажей в здании
25
Этаж
1
Продажа
481
21.02.2025
location_white Псковская обл, Остров г, 25 Октября ул, 35
Площадь
214.20 м²
Цена за м²
10 504 ₽
Этажей в здании
2
Этаж
1
Продажа
52
12.07.2023
location_white Металлострой п, на Металлострой дор, 8
Площадь
3500.00 м²
Цена за м²
35 142 ₽
Этажей в здании
1
Этаж
1
Продажа
Архив
1
15.10.2024
location_white Ленинградская обл, Вырица гп, Сиверское ш, 198
Площадь
1581.00 м²
Цена за м²
29 728 ₽
Этажей в здании
1
Этаж
1