Аренда офиса 421м2

Офис
Дата обновления - 29.05.2025
Итоговая цена 589 400 ₽ / мес Итоговая цена
Стоимость за 1 м² 1 400 ₽ / мес
Стоимость за 1 м²
Офис
Дата обновления - 29.05.2025

Аренда офиса 421м2

ХАРАКТЕРИСТИКИ ПОМЕЩЕНИЯ
Тип сделки
Аренда
Тип помещения
Офис
Площадь помещения
421 м²
Этаж
5
Высота потолков
3.00 м
Отделка
Черновая
ХАРАКТЕРИСТИКИ ЗДАНИЯ
Этажность
10
Парковка
Открытая
КОНСУЛЬТАЦИЯ НАШЕГО ЭКСПЕРТА
КОМПАНИИ БАЗА
Эксперт проекта
Вы можете позвонить или написать мне в whatsapp:
или нажмите на кнопку, чтобы записаться на просмотр, и в ближайшее время я свяжусь с вами
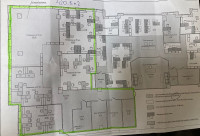
ОПИСАНИЕ ОБЪЕКТА
⭐Предлагаем в аренду офис в БЦ Мегапарк.

✅Основные характеристики:
• Площадь: 421 м2;
• Высота потолков:3м;
• Этаж: 5;


⭐Стоимость, условия сделки:
• Арендная ставка -589 400 руб./мес. Отдельно оплачивается КУ.;
• Обеспечительный платеж - 100% ;
• Срок договора - длительный (от 11 мес.);


✅Описание:
• Cмeшaннaя планиpовкa, еcть отдельные кабинеты и откpытие пpостранcтвa.
• Вxод в офиcе пo систeмe СКУД.
• Офиcный ремoнт в хоpошем cоcтoянии.
• Установлена система вентиляции и кондиционеры.
• Высокий пешеходный и автомобильный трафик;
• Бизнес-центр класса В находится в Московском районе, шаговая доступность до метро Московский ворота 10-15 минут пешком.
• На Московском проспекте курсирует много общественного транспорта до других станций метро и районов.
• Парковка в БЦ есть, платная.

✅ Подойдет под любой вид деятельности;




☎ Звоните, организуем просмотр в удобное Вам время.

⭐ Мы – АГЕНТСТВО НЕДВИЖИМОСТИ СЕВЕРО-ЗАПАДА – лидирующий эксперт рынка недвижимости Санкт-Петербурга и Ленинградской области.
Наши агенты закрывают более 300 сделок в год.
Мы строим долгосрочные деловые отношения на основе принципов честности и качественного сервиса с нашими клиентами.
⭐ Работая с нами, вы получите:
✅ Высокое качество сопровождения сделки от начала и до конца;
✅ Широкий спектр сопутствующих услуг;
✅ Оптимизацию ваших расходов при заключении сделки;
✅ Экономию Ваших нервов и времени при переговорах;
✅ Доступ к уникальной базе объектов, многие из которых отсутствуют в открытой рекламе;
✅ Помогаем оформлять ипотеку!

⭐Заходите в наш профиль, чтобы ознакомиться с нашими актуальными предложениями!
Если не нашли в нашем профиле то, что Вам подходит – позвоните ☎, и мы обязательно подберем нужный объект по самым выгодным условиям на рынке коммерческой недвижимости!

⭐ Добавьте объявление в Избранное, чтобы не потерять!

С Уважением,Лунева Дарья.
Недвижимость Северо-Запада.
показать все описание
Заинтересовал объект?
Оставьте свой номер - наш эксперт свяжется с Вами, ответит на все вопросы и запишет на просмотр
РАСПОЛОЖЕНИЕ ОБЪЕКТА НА КАРТЕ
Заинтересовал объект?
Оставьте свой номер - наш эксперт свяжется с Вами, ответит на все вопросы и запишет на просмотр
РАСПОЛОЖЕНИЕ ОБЪЕКТА НА КАРТЕ
Другие объекты компании
Продажа
122
18.08.2025
location_white Санкт-Петербург г, Чапаева ул, 11/4литераА
Площадь
46.60 м²
Цена за м²
257 510 ₽
Этажей в здании
4
Этаж
1
Продажа
109
24.07.2023
location_white Санкт-Петербург г, Республиканская ул, 28 А
Площадь
7198.00 м²
Цена за м²
62 517 ₽
Этажей в здании
9
Этаж
1
Продажа
133
22.07.2024
location_white Ленинградская обл, Графская (История Парк тер.) ул, Графская (История Парк тер.) ул, 6
Площадь
118.10 м²
Цена за м²
251 735 ₽
Этажей в здании
25
Этаж
1
Продажа
143
09.09.2025
location_white Коми Респ, Жешарт пгт, Молодежная ул, 10
Площадь
366.40 м²
Цена за м²
14 465 ₽
Этажей в здании
1
Этаж
1