Аренда помещения с ремонтом 205 м2

ПСН
Дата обновления - 12.02.2026
Итоговая цена 250 000 ₽ / мес Итоговая цена
Стоимость за 1 м² 1 219 ₽ / мес
Стоимость за 1 м²
ПСН
Дата обновления - 12.02.2026

Аренда помещения с ремонтом 205 м2

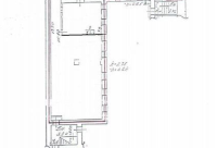
ХАРАКТЕРИСТИКИ ПОМЕЩЕНИЯ
Тип сделки
Аренда
Тип помещения
ПСН
Площадь помещения
205 м²
Этаж
-1
Высота потолков
3.00 м
Отделка
Чистовая стандарт
ХАРАКТЕРИСТИКИ ЗДАНИЯ
Этажность
1
Парковка
Открытая
КОНСУЛЬТАЦИЯ НАШЕГО ЭКСПЕРТА
Артур Гаджимурадов
Эксперт проекта
Вы можете позвонить или написать мне в whatsapp:
или нажмите на кнопку, чтобы записаться на просмотр, и в ближайшее время я свяжусь с вами
ОПИСАНИЕ ОБЪЕКТА
⭐Предлагаем в аренду помещение с качественным ремонтом 205 м2

✅Основные характеристики:
• Площадь: 205 м2;
• Мощность электросети: 10 кВт;
• Высота потолков: больше 3-х мeтрoв;
• Этаж: цокольный;
• 2 cанузла;
• Хорошее вентиляционное оборудование;
• Пожарная сигнализация;
• Домофон;
• Окна - стеклопакет;
• Помещение подходит под офис, медицинский центр, учебный центр, хостел или мини-гостиницу и др;
• В 5 минутах от метро Владимирская/Достоевская, Маяковская, пл. Восстания;

⭐Стоимость, условия сделки:
• Арендная ставка - 250 000 руб./мес.;
• Обеспечительный платеж - 100% (250 000 руб.);
• Срок договора - длительный (от 11 мес.);
• Предоставляются арендные каникулы;

✅Описание:
• Высокий пешеходный и автомобильный трафик;
• Отдельный вход;
• Вывеска, места под рекламу;
• Помещение в хорошем состоянии;
• Все коммуникации: телефонные линии, водоснабжение, канализация, теплоснабжение;
• Юр. статус: собственность.

✅ Подойдет под любой вид деятельности;


☎ Звоните, организуем просмотр в удобное Вам время.

⭐ Мы – АГЕНТСТВО НЕДВИЖИМОСТИ СЕВЕРО-ЗАПАДА – лидирующий эксперт рынка недвижимости Санкт-Петербурга и Ленинградской области.
Наши агенты закрывают более 300 сделок в год.
Мы строим долгосрочные деловые отношения на основе принципов честности и качественного сервиса с нашими клиентами.
⭐ Работая с нами, вы получите:
✅ Высокое качество сопровождения сделки от начала и до конца;
✅ Широкий спектр сопутствующих услуг;
✅ Оптимизацию ваших расходов при заключении сделки;
✅ Экономию Ваших нервов и времени при переговорах;
✅ Доступ к уникальной базе объектов, многие из которых отсутствуют в открытой рекламе;
✅ Помогаем оформлять ипотеку!

⭐Заходите в наш профиль, чтобы ознакомиться с нашими актуальными предложениями!
Если не нашли в нашем профиле то, что Вам подходит – позвоните ☎, и мы обязательно подберем нужный объект по самым выгодным условиям на рынке коммерческой недвижимости!

⭐ Добавьте объявление в Избранное, чтобы не потерять!

С Уважением, Артур Гаджимурадов.
Недвижимость Северо-Запада.
показать все описание
Заинтересовал объект?
Оставьте свой номер - наш эксперт свяжется с Вами, ответит на все вопросы и запишет на просмотр
РАСПОЛОЖЕНИЕ ОБЪЕКТА НА КАРТЕ
Заинтересовал объект?
Оставьте свой номер - наш эксперт свяжется с Вами, ответит на все вопросы и запишет на просмотр
РАСПОЛОЖЕНИЕ ОБЪЕКТА НА КАРТЕ
Другие объекты компании
Аренда
219
24.06.2025
location_white Санкт-Петербург г, Средний В.О. пр-кт, 88
Площадь
425.00 м²
Цена за м²
1 920 ₽
Этажей в здании
9
Этаж
4
Продажа
34
22.01.2026
location_white Ленинградская обл, производственно-административная зона Узигонты, -, 21/1
Площадь
475.00 м²
Цена за м²
137 894 ₽
Этажей в здании
1
Этаж
1
Аренда
182
01.11.2025
location_white Санкт-Петербург г, Рубинштейна ул, 30
Площадь
105.00 м²
Цена за м²
1 904 ₽
Этажей в здании
4
Этаж
1
Продажа
29
22.01.2026
location_white Ленинградская обл, Новоселье гп, Снежный пер, 2
Площадь
425.70 м²
Цена за м²
375 851 ₽
Этажей в здании
12
Этаж
1