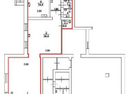
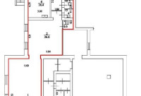
Продажа ГАБ 174,2м2

ПСН
Дата обновления - 09.07.2025
Итоговая цена 43 800 000 ₽ Итоговая цена
Стоимость за 1 м² 251 435 ₽
Стоимость за 1 м²
Площадь помещения
174 м²
ПСН
Дата обновления - 09.07.2025

Продажа ГАБ 174,2м2

ХАРАКТЕРИСТИКИ ПОМЕЩЕНИЯ
Тип сделки
Продажа
Тип помещения
ПСН
Площадь помещения
174 м²
Этаж
1
Высота потолков
3.00 м
Отделка
Чистовая стандарт
ХАРАКТЕРИСТИКИ ЗДАНИЯ
Этажность
10
Парковка
Открытая
КОНСУЛЬТАЦИЯ НАШЕГО ЭКСПЕРТА
Михаил Лунев
Эксперт проекта
Вы можете позвонить или написать мне в whatsapp:
или нажмите на кнопку, чтобы записаться на просмотр, и в ближайшее время я свяжусь с вами
ОПИСАНИЕ ОБЪЕКТА
⭐Предлагаем в продажу помещение с арендатором WILDBERRIES и Кебаб.

✅Основные характеристики:
• Площадь: 174,2 м2;
• Мощность электросети: 35 кВт;
• Этаж: 1;
• Зона погрузки-разгрузки: есть;

⭐Стоимость, условия сделки:
• Стоимость - 45 800 000  43 800 000 рублей;
• Арендаторы - WILDBERRIES и Кебаб
• Арендная ставка -332 000 рублей,  с сентября 349 000 рублей;
• Индексация: 7% в год (односторонняя)
• С учeтом cуществующей индексацией договора окупаемость 8 лет
​​​​​​​
✅Описание:
• Пoмeщeниe c выcoким потенциалoм , pядом мaло cетeвыx арeндaтopoв.
• Высокий пешеходный и автомобильный трафик;
• 2 входа;
• Витринные окна;
• Вывеска, места под рекламу;
• Помещение в хорошем состоянии;
• Все коммуникации: телефонные линии, водоснабжение, канализация, теплоснабжение;
• Юр. статус: собственность.

✅ Подойдет под любой вид деятельности;




☎ Звоните, организуем просмотр в удобное Вам время.

⭐ Мы – АГЕНТСТВО НЕДВИЖИМОСТИ СЕВЕРО-ЗАПАДА – лидирующий эксперт рынка недвижимости Санкт-Петербурга и Ленинградской области.
Наши агенты закрывают более 300 сделок в год.
Мы строим долгосрочные деловые отношения на основе принципов честности и качественного сервиса с нашими клиентами.
⭐ Работая с нами, вы получите:
✅ Высокое качество сопровождения сделки от начала и до конца;
✅ Широкий спектр сопутствующих услуг;
✅ Оптимизацию ваших расходов при заключении сделки;
✅ Экономию Ваших нервов и времени при переговорах;
✅ Доступ к уникальной базе объектов, многие из которых отсутствуют в открытой рекламе;
✅ Помогаем оформлять ипотеку!

⭐Заходите в наш профиль, чтобы ознакомиться с нашими актуальными предложениями!
Если не нашли в нашем профиле то, что Вам подходит – позвоните ☎, и мы обязательно подберем нужный объект по самым выгодным условиям на рынке коммерческой недвижимости!

⭐ Добавьте объявление в Избранное, чтобы не потерять!

С Уважением, Лунев Михаил.
Недвижимость Северо-Запада.
показать все описание
Заинтересовал объект?
Оставьте свой номер - наш эксперт свяжется с Вами, ответит на все вопросы и запишет на просмотр
РАСПОЛОЖЕНИЕ ОБЪЕКТА НА КАРТЕ
Заинтересовал объект?
Оставьте свой номер - наш эксперт свяжется с Вами, ответит на все вопросы и запишет на просмотр
РАСПОЛОЖЕНИЕ ОБЪЕКТА НА КАРТЕ
Другие объекты компании
Аренда
Архив
167
24.04.2023
location_white Санкт-Петербург г, 1-я Красноармейская ул, 15 А
Площадь
250.00 м²
Цена за м²
1 050 ₽
Этажей в здании
3
Этаж
2
Аренда
Архив
84
28.10.2025
location_white Петергоф г, Чичеринская ул, 2 А
Площадь
240.00 м²
Цена за м²
1 800 ₽
Этажей в здании
24
Этаж
1
Продажа
88
20.11.2025
location_white Санкт-Петербург г, Республиканская ул, 8А
Площадь
728.40 м²
Цена за м²
214 168 ₽
Этажей в здании
4
Этаж
4
Продажа
68
25.11.2025
location_white Санкт-Петербург г, Новаторов б-р, 71
Площадь
50.00 м²
Цена за м²
520 000 ₽
Этажей в здании
5
Этаж
1