Продажа ОСЗ ГАБ с надёжными арендаторами, 1652м2

ОСЗ
Дата обновления - 21.01.2026
Итоговая цена 295 000 000 ₽ Итоговая цена
Стоимость за 1 м² 178 571 ₽
Стоимость за 1 м²
Площадь помещения
1 652 м²
ОСЗ
Дата обновления - 21.01.2026

Продажа ОСЗ ГАБ с надёжными арендаторами, 1652м2

ХАРАКТЕРИСТИКИ ПОМЕЩЕНИЯ
Тип сделки
Продажа
Тип помещения
ОСЗ
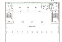
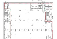
Площадь помещения
1 652 м²
Этаж
1
Высота потолков
3.75 м
Отделка
Чистовая стандарт
ХАРАКТЕРИСТИКИ ЗДАНИЯ
Этажность
3
Парковка
Открытая
КОНСУЛЬТАЦИЯ НАШЕГО ЭКСПЕРТА
Дарья Лунёва
Эксперт проекта
Вы можете позвонить или написать мне в whatsapp:
или нажмите на кнопку, чтобы записаться на просмотр, и в ближайшее время я свяжусь с вами
ОПИСАНИЕ ОБЪЕКТА
⭐Предлагаем в продажу ОСЗ ГАБ с надёжными арендаторами

✅Основные характеристики:
• Площадь: 1652м2;
• Мощность электросети: 94кВт;
• Высота потолков: от 2,3 до 3,75м;
• Этаж: 1, 2 и 3;
• В 11 минутах от метро Московская;


⭐Стоимость, условия сделки:
• Цена объекта - 295 000 000 руб.;
• Арендный платёж - 1 728 000 руб./мес.;
• Арендатор - Магнит и Медицинский Центр;
• Земельный участок в аренде на 49 лет
• Сроки договоров с арендаторами - длительные (от 11 мес.);


✅Описание:
• Высокий пешеходный и автомобильный трафик;
• 2 отдельных входа;
• Витринные окна;
• Вентиляция (приток-вытяжка);
• Центральное отопление;
​​​​​​​• Парковка для клиентов;
• Вывеска, места под рекламу;
• Помещение в хорошем состоянии;
• Все коммуникации: телефонные линии, водоснабжение, канализация, теплоснабжение;
• Юр. статус: собственность.

✅ Подойдет под любой вид деятельности;




☎ Звоните, организуем просмотр в удобное Вам время.

⭐ Мы – АГЕНТСТВО НЕДВИЖИМОСТИ СЕВЕРО-ЗАПАДА – лидирующий эксперт рынка недвижимости Санкт-Петербурга и Ленинградской области.
Наши агенты закрывают более 300 сделок в год.
Мы строим долгосрочные деловые отношения на основе принципов честности и качественного сервиса с нашими клиентами.
⭐ Работая с нами, вы получите:
✅ Высокое качество сопровождения сделки от начала и до конца;
✅ Широкий спектр сопутствующих услуг;
✅ Оптимизацию ваших расходов при заключении сделки;
✅ Экономию Ваших нервов и времени при переговорах;
✅ Доступ к уникальной базе объектов, многие из которых отсутствуют в открытой рекламе;
✅ Помогаем оформлять ипотеку!

⭐Заходите в наш профиль, чтобы ознакомиться с нашими актуальными предложениями!
Если не нашли в нашем профиле то, что Вам подходит – позвоните ☎, и мы обязательно подберем нужный объект по самым выгодным условиям на рынке коммерческой недвижимости!

⭐ Добавьте объявление в Избранное, чтобы не потерять!

С Уважением, Михаил.
Недвижимость Северо-Запада.
показать все описание
Заинтересовал объект?
Оставьте свой номер - наш эксперт свяжется с Вами, ответит на все вопросы и запишет на просмотр
РАСПОЛОЖЕНИЕ ОБЪЕКТА НА КАРТЕ
Заинтересовал объект?
Оставьте свой номер - наш эксперт свяжется с Вами, ответит на все вопросы и запишет на просмотр
РАСПОЛОЖЕНИЕ ОБЪЕКТА НА КАРТЕ
Другие объекты компании
Продажа
120
22.01.2026
location_white Ленинградская обл, Новоселье гп, Снежный пер, 2
Площадь
425.70 м²
Цена за м²
375 851 ₽
Этажей в здании
12
Этаж
1
Продажа
1
26.05.2026
location_white Санкт-Петербург г, Юрия Гагарина пр-кт, 20к7
Площадь
740.00 м²
Цена за м²
167 567 ₽
Этажей в здании
2
Этаж
1
Продажа
100
12.03.2026
location_white Санкт-Петербург г, Дальневосточный пр-кт, 37к1
Площадь
24.50 м²
Цена за м²
237 000 ₽
Этажей в здании
2
Этаж
2
Продажа
Архив
32
19.03.2024
location_white Санкт-Петербург г, Колпинская ул, 15 А
Площадь
65.10 м²
Цена за м²
384 024 ₽
Этажей в здании
5
Этаж
1