Продажа помещение 354.3м2

ПСН
Дата обновления - 03.02.2026
Итоговая цена 42 300 000 ₽ Итоговая цена
Стоимость за 1 м² 119 390 ₽
Стоимость за 1 м²
ПСН
Дата обновления - 03.02.2026

Продажа помещение 354.3м2

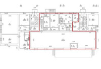
ХАРАКТЕРИСТИКИ ПОМЕЩЕНИЯ
Тип сделки
Продажа
Тип помещения
ПСН
Площадь помещения
354 м²
Этаж
1
Высота потолков
3.10 м
Отделка
Чистовая стандарт
ХАРАКТЕРИСТИКИ ЗДАНИЯ
Этажность
6
Парковка
Открытая
КОНСУЛЬТАЦИЯ НАШЕГО ЭКСПЕРТА
Даниил Сигов
Эксперт проекта
Вы можете позвонить или написать мне в whatsapp:
или нажмите на кнопку, чтобы записаться на просмотр, и в ближайшее время я свяжусь с вами
ОПИСАНИЕ ОБЪЕКТА
⭐Предлагаем в продажу помещение. 

✅Основные характеристики:
• Площадь: 354.3м2; ( 1 этаж -193.4, подвал 160.9м2)
• Мощность электросети: 100кВт;
• Высота потолков:3.1м;
• Этаж: 1;

⭐Стоимость, условия сделки:
• Стоимость - 46 200 000 рублей
• Предположительный МАП 395 000 рублей + КУ 

✅Описание:
• Высокий пешеходный и автомобильный трафик;
• 2 Отдельный входа;
• Витринные окна;
• Вывеска, места под рекламу;
• Помещение в хорошем состоянии;
• Все коммуникации: телефонные линии, водоснабжение, канализация, теплоснабжение;
• Юр. статус: собственность.

✅ Подойдет под любой вид деятельности;




☎ Звоните, организуем просмотр в удобное Вам время.

⭐ Мы – АГЕНТСТВО НЕДВИЖИМОСТИ СЕВЕРО-ЗАПАДА – лидирующий эксперт рынка недвижимости Санкт-Петербурга и Ленинградской области.
Наши агенты закрывают более 300 сделок в год.
Мы строим долгосрочные деловые отношения на основе принципов честности и качественного сервиса с нашими клиентами.
⭐ Работая с нами, вы получите:
✅ Высокое качество сопровождения сделки от начала и до конца;
✅ Широкий спектр сопутствующих услуг;
✅ Оптимизацию ваших расходов при заключении сделки;
✅ Экономию Ваших нервов и времени при переговорах;
✅ Доступ к уникальной базе объектов, многие из которых отсутствуют в открытой рекламе;
✅ Помогаем оформлять ипотеку!

⭐Заходите в наш профиль, чтобы ознакомиться с нашими актуальными предложениями!
Если не нашли в нашем профиле то, что Вам подходит – позвоните ☎, и мы обязательно подберем нужный объект по самым выгодным условиям на рынке коммерческой недвижимости!

⭐ Добавьте объявление в Избранное, чтобы не потерять!

С Уважением, Сигов Даниил.
Недвижимость Северо-Запада.
показать все описание
Заинтересовал объект?
Оставьте свой номер - наш эксперт свяжется с Вами, ответит на все вопросы и запишет на просмотр
РАСПОЛОЖЕНИЕ ОБЪЕКТА НА КАРТЕ
Заинтересовал объект?
Оставьте свой номер - наш эксперт свяжется с Вами, ответит на все вопросы и запишет на просмотр
РАСПОЛОЖЕНИЕ ОБЪЕКТА НА КАРТЕ
Другие объекты компании
Аренда
34
14.01.2026
location_white Санкт-Петербург г, Большой П.С. пр-кт, 31 А
Площадь
200.00 м²
Цена за м²
1 195 ₽
Этажей в здании
6
Этаж
-1
Продажа
Архив
213
09.11.2022
location_white Ленинградская обл, Сосновый Бор г, Мира ул, 1
Площадь
5500.00 м²
Цена за м²
10 727 ₽
Этажей в здании
4
Этаж
1
Аренда
521
14.10.2024
location_white Санкт-Петербург г, Бестужевская ул, 10
Площадь
1500.00 м²
Цена за м²
1 100 ₽
Этажей в здании
6
Этаж
2
Аренда
Архив
100
05.11.2025
location_white Санкт-Петербург г, Среднерогатская ул, 11к2 стр 1
Площадь
475.70 м²
Цена за м²
3 800 ₽
Этажей в здании
12
Этаж
1