Продажа помещения в ЖК Новомосковский

ПСН
Дата обновления - 17.04.2025
Итоговая цена 135 000 000 ₽ Итоговая цена
Стоимость за 1 м² 158 674 ₽
Стоимость за 1 м²
ПСН
Дата обновления - 17.04.2025

Продажа помещения в ЖК Новомосковский

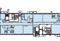
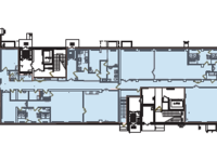
ХАРАКТЕРИСТИКИ ПОМЕЩЕНИЯ
Тип сделки
Продажа
Тип помещения
ПСН
Площадь помещения
851 м²
Этаж
1
Высота потолков
3.30 м
Отделка
Чистовая стандарт
ХАРАКТЕРИСТИКИ ЗДАНИЯ
Этажность
1
Парковка
Открытая
КОНСУЛЬТАЦИЯ НАШЕГО ЭКСПЕРТА
Тлевалдэ Шуканов
Эксперт проекта
Вы можете позвонить или написать мне в whatsapp:
или нажмите на кнопку, чтобы записаться на просмотр, и в ближайшее время я свяжусь с вами
ОПИСАНИЕ ОБЪЕКТА
⭐Предлагаем в продажу помещение в ЖК Новомосковский

✅Основные характеристики:
• Площадь: 850,8 м2;
• 6 входов;
• Мощность электросети: 89 кВт;
• Высота потолков: 3,3 м;
• Этаж: 1;
• В 5 минутах от метро Фрунзенская;

⭐Стоимость, условия сделки:
• Цена продажи: 135 000 000 рублей;
• Арендатор: Магнит;
• Арендные условия: 6% от ТО, но не менее 1 000 000 в месяц;
• 100 м2 свободные. Дополнительный потенциал аренды 150 000 руб/месяц.


✅Описание:
• Высокий пешеходный и автомобильный трафик;
• Отдельный вход;
• Вывеска, места под рекламу;
• Помещение в хорошем состоянии;
• Все коммуникации: телефонные линии, водоснабжение, канализация, теплоснабжение;
• Юр. статус: собственность.

✅ Подойдет под любой вид деятельности;




☎ Звоните, организуем просмотр в удобное Вам время.

⭐ Мы – АГЕНТСТВО НЕДВИЖИМОСТИ СЕВЕРО-ЗАПАДА – лидирующий эксперт рынка недвижимости Санкт-Петербурга и Ленинградской области.
Наши агенты закрывают более 300 сделок в год.
Мы строим долгосрочные деловые отношения на основе принципов честности и качественного сервиса с нашими клиентами.
⭐ Работая с нами, вы получите:
✅ Высокое качество сопровождения сделки от начала и до конца;
✅ Широкий спектр сопутствующих услуг;
✅ Оптимизацию ваших расходов при заключении сделки;
✅ Экономию Ваших нервов и времени при переговорах;
✅ Доступ к уникальной базе объектов, многие из которых отсутствуют в открытой рекламе;
✅ Помогаем оформлять ипотеку!

⭐Заходите в наш профиль, чтобы ознакомиться с нашими актуальными предложениями!
Если не нашли в нашем профиле то, что Вам подходит – позвоните ☎, и мы обязательно подберем нужный объект по самым выгодным условиям на рынке коммерческой недвижимости!

⭐ Добавьте объявление в Избранное, чтобы не потерять!

С Уважением, Тлевалдэ.
Недвижимость Северо-Запада.
показать все описание
Заинтересовал объект?
Оставьте свой номер - наш эксперт свяжется с Вами, ответит на все вопросы и запишет на просмотр
РАСПОЛОЖЕНИЕ ОБЪЕКТА НА КАРТЕ
Заинтересовал объект?
Оставьте свой номер - наш эксперт свяжется с Вами, ответит на все вопросы и запишет на просмотр
РАСПОЛОЖЕНИЕ ОБЪЕКТА НА КАРТЕ
Другие объекты компании
Продажа
Архив
0
24.05.2024
location_white Санкт-Петербург г, Маршала Тухачевского ул, 3 А
Площадь
927.80 м²
Цена за м²
194 007 ₽
Этажей в здании
9
Этаж
1
Продажа
142
24.04.2025
location_white Санкт-Петербург г, Конная ул, 9 А
Площадь
140.00 м²
Цена за м²
428 571 ₽
Этажей в здании
5
Этаж
1
Продажа
79
21.07.2025
location_white Санкт-Петербург г, Типанова ул, 19
Площадь
81.00 м²
Цена за м²
320 987 ₽
Этажей в здании
1
Этаж
1
Продажа
82
14.07.2025
location_white Ленинградская обл, Производственная зона-1 тер, Политехническая ул, 13
Площадь
1132.00 м²
Цена за м²
42 402 ₽
Этажей в здании
1
Этаж
1