Продажа с арендаторами 189.7м2

ПСН
Дата обновления - 14.07.2025
Итоговая цена 80 000 000 ₽ Итоговая цена
Стоимость за 1 м² 421 718 ₽
Стоимость за 1 м²
ПСН
Дата обновления - 14.07.2025

Продажа с арендаторами 189.7м2

ХАРАКТЕРИСТИКИ ПОМЕЩЕНИЯ
Тип сделки
Продажа
Тип помещения
ПСН
Площадь помещения
190 м²
Этаж
-1
Высота потолков
2.70 м
Отделка
Чистовая стандарт
Вход в помещение
Центральный
ХАРАКТЕРИСТИКИ ЗДАНИЯ
Этажность
5
Парковка
Открытая
КОНСУЛЬТАЦИЯ НАШЕГО ЭКСПЕРТА
Даниил Сигов
Эксперт проекта
Вы можете позвонить или написать мне в whatsapp:
или нажмите на кнопку, чтобы записаться на просмотр, и в ближайшее время я свяжусь с вами
ОПИСАНИЕ ОБЪЕКТА
⭐Предлагаем в продажу помещение на Невском пр-кте

✅Основные характеристики:
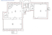
• S объекта – 189,7 м2 (S столовой – 129 м2, S магазина – 60 м2)
• Мощность электросети: 45кВт 
• Вентиляция – «свеча»
• Высота потолков: 2,63м;
• Этаж: цокольный;
• В 5 минутах от метро пл. Александра Невского;
• Помещение состоит из 2х залов. 7 окон по фасаду.
​​​​​​​

⭐Стоимость, условия сделки:
• Цена: 80 млн. рублей (500 тыс. рублей – 1 м2), НДС не облагается
• В настоящее время помещение занимает Столовая STREET (129м) и Продукты 24.
• Арендный доход: 650 000 рублей в месяц (3 429 рублей – 1 м2)

​​​​​​​
✅Описание:
• Активная проходимость в районе объекта обусловлена ближайшим расположением остановок
общественного транспорта;
• Два входа - с фасада здания и со двора
• Возможность парковки автомобилей
• По соседству расположена престижная жилая застройка, отели,бизнес центры, бутики.;
• Второй этаж над объектом расположен Бизнес центр «Невский»
• Помещение в хорошем состоянии;
• Все коммуникации: телефонные линии, водоснабжение, канализация, теплоснабжение;
• Юр. статус: собственность.

✅ Подойдет под любой вид деятельности;




☎ Звоните, организуем просмотр в удобное Вам время.

⭐ Мы – АГЕНТСТВО НЕДВИЖИМОСТИ СЕВЕРО-ЗАПАДА – лидирующий эксперт рынка недвижимости Санкт-Петербурга и Ленинградской области.
Наши агенты закрывают более 300 сделок в год.
Мы строим долгосрочные деловые отношения на основе принципов честности и качественного сервиса с нашими клиентами.
⭐ Работая с нами, вы получите:
✅ Высокое качество сопровождения сделки от начала и до конца;
✅ Широкий спектр сопутствующих услуг;
✅ Оптимизацию ваших расходов при заключении сделки;
✅ Экономию Ваших нервов и времени при переговорах;
✅ Доступ к уникальной базе объектов, многие из которых отсутствуют в открытой рекламе;
✅ Помогаем оформлять ипотеку!

⭐Заходите в наш профиль, чтобы ознакомиться с нашими актуальными предложениями!
Если не нашли в нашем профиле то, что Вам подходит – позвоните ☎, и мы обязательно подберем нужный объект по самым выгодным условиям на рынке коммерческой недвижимости!

⭐ Добавьте объявление в Избранное, чтобы не потерять!

С Уважением, Сигов Даниил,
Недвижимость Северо-Запада.
показать все описание
Заинтересовал объект?
Оставьте свой номер - наш эксперт свяжется с Вами, ответит на все вопросы и запишет на просмотр
РАСПОЛОЖЕНИЕ ОБЪЕКТА НА КАРТЕ
Заинтересовал объект?
Оставьте свой номер - наш эксперт свяжется с Вами, ответит на все вопросы и запишет на просмотр
РАСПОЛОЖЕНИЕ ОБЪЕКТА НА КАРТЕ
Другие объекты компании
Продажа
Архив
121
23.01.2023
location_white Санкт-Петербург г, Наставников пр-кт, 25к1 А
Площадь
50.00 м²
Цена за м²
370 000 ₽
Этажей в здании
14
Этаж
1
Продажа
Архив
0
20.05.2025
location_white Санкт-Петербург г, Белинского ул, 5
Площадь
814.00 м²
Цена за м²
393 120 ₽
Этажей в здании
6
Этаж
3
Продажа
Архив
0
23.09.2024
location_white Санкт-Петербург г, Гороховая ул, 50 А
Площадь
186.00 м²
Цена за м²
123 655 ₽
Этажей в здании
4
Этаж
-1
Аренда
562
26.07.2024
location_white Ленинградская обл, Янино-1 д, Голландская ул, 18к1
Площадь
116.30 м²
Цена за м²
1 500 ₽
Этажей в здании
10
Этаж
1