Здание с арендаторами. Окупаемость 9 лет

ОСЗ
Дата обновления - 02.02.2026
Итоговая цена 160 000 000 ₽ Итоговая цена
Стоимость за 1 м² 184 971 ₽
Стоимость за 1 м²
ОСЗ
Дата обновления - 02.02.2026

Здание с арендаторами. Окупаемость 9 лет

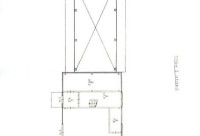
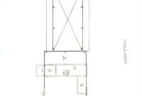
ХАРАКТЕРИСТИКИ ПОМЕЩЕНИЯ
Тип сделки
Продажа
Тип помещения
ОСЗ
Площадь помещения
865 м²
Этаж
1
Высота потолков
4.00 м
Отделка
Чистовая стандарт
ХАРАКТЕРИСТИКИ ЗДАНИЯ
Этажность
2
Парковка
Открытая
КОНСУЛЬТАЦИЯ НАШЕГО ЭКСПЕРТА
Даниил Сигов
Эксперт проекта
Вы можете позвонить или написать мне в whatsapp:
или нажмите на кнопку, чтобы записаться на просмотр, и в ближайшее время я свяжусь с вами
ОПИСАНИЕ ОБЪЕКТА
ОТ СОБСТВЕННИКА, БЕЗ КОМИССИЙ. 
⭐Предлагаю в продажу готовый арендный бизнес. Здание от собственника. Oкупaeмocть 10 лет, с возможностью сокращения cpoков.

✅Основные характеристики:
• Площади:
• Здание 865 м2 (собственность на юр. лице);
• Земля - 1820 м2 (в аренде у города на 49 лет с возможностью выкупа);
• Мощность электросети: 100 кВт;
• Высота потолков: 4 метра;
• Этаж: 1-2; Возможность увеличения площади за счет надстройки 3-го этажа;
• В 5 минутах от метро Автово;


⭐Стоимость, условия сделки:
• Стоимость продажи 160 000 000 рублей УСН;
• Арендный поток от 1,8 до 2,5 млн рублей в месяц по году;


✅Описание:

Собственная котельная на газу (проведён газ официально);

Водоснабжение - ХВС городское

Канализация - городская

Системы пожарной безопасности.

Быстрый выход на сделку, документы готовы.

• Высокий автомобильный трафик;
• Отдельные входа;
• Витринные окна;
• Вывеска, места под рекламу;
• Помещение в хорошем состоянии;
• Все коммуникации: телефонные линии, водоснабжение, канализация, теплоснабжение;

✅ Подойдет под любой вид деятельности;

☎ Звоните, организуем просмотр в удобное Вам время.

⭐ Добавьте объявление в Избранное, чтобы не потерять!

С Уважением, Тлевалдэ.
Недвижимость Северо-Запада.
показать все описание
Заинтересовал объект?
Оставьте свой номер - наш эксперт свяжется с Вами, ответит на все вопросы и запишет на просмотр
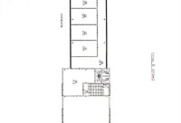
РАСПОЛОЖЕНИЕ ОБЪЕКТА НА КАРТЕ
Заинтересовал объект?
Оставьте свой номер - наш эксперт свяжется с Вами, ответит на все вопросы и запишет на просмотр
РАСПОЛОЖЕНИЕ ОБЪЕКТА НА КАРТЕ
Другие объекты компании
Продажа
115
13.10.2023
location_white Ленинградская обл, Рождествено с, Большой пр-кт, 106Б
Площадь
600.00 м²
Цена за м²
200 000 ₽
Этажей в здании
1
Этаж
1
Аренда
367
17.04.2025
location_white Ленинградская обл, Производственная зона Мурино тер, Сквозной пр-д, 17
Площадь
1500.00 м²
Цена за м²
600 ₽
Этажей в здании
1
Этаж
1
Аренда
51
29.07.2024
location_white Санкт-Петербург г, Будапештская ул, 94/41 А
Площадь
65.00 м²
Цена за м²
769 ₽
Этажей в здании
2
Этаж
2
Продажа
212
30.07.2025
location_white Ленинградская обл, Кирпичное п, школьная , 2а
Площадь
1187.00 м²
Цена за м²
37 910 ₽
Этаж
1